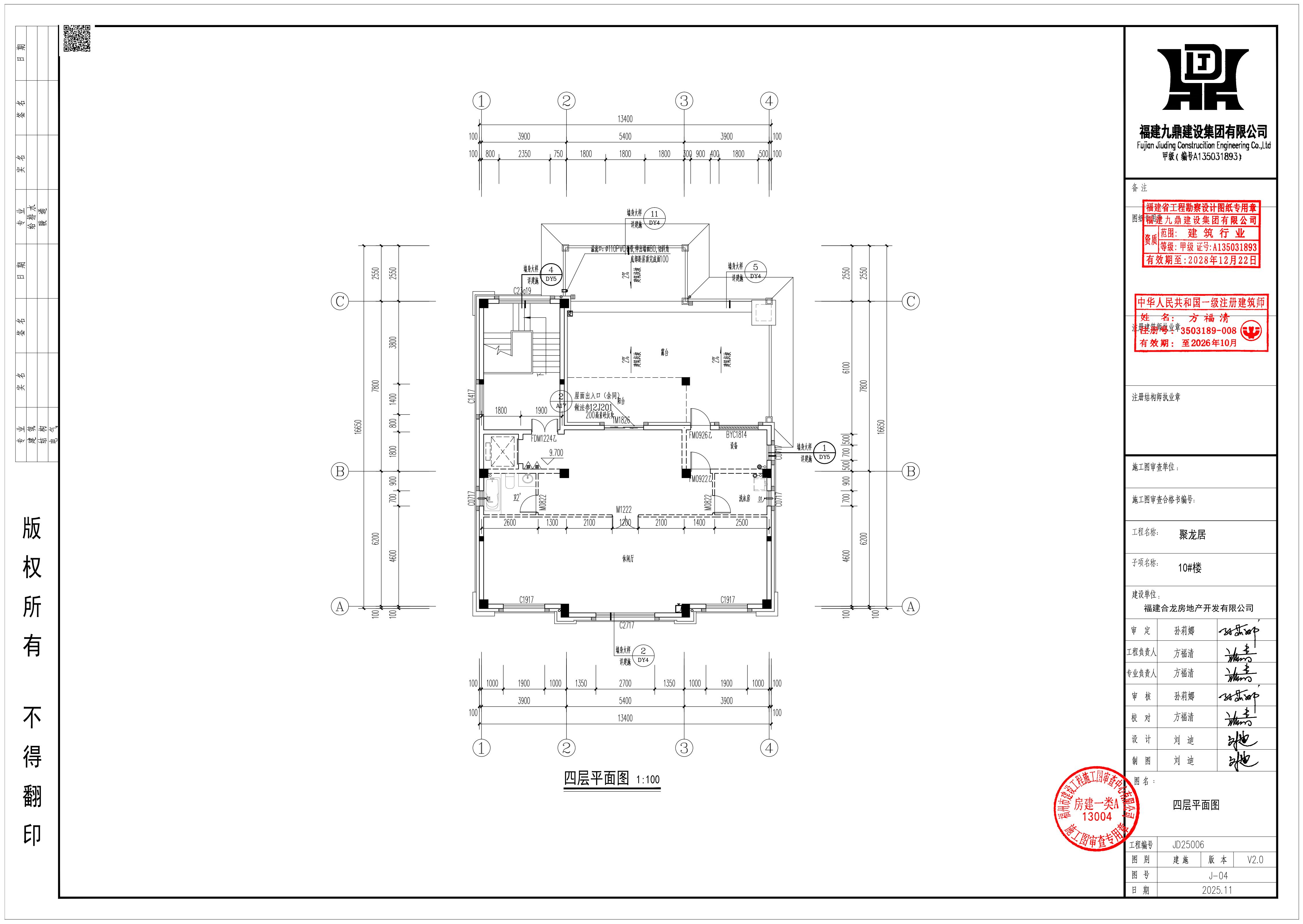
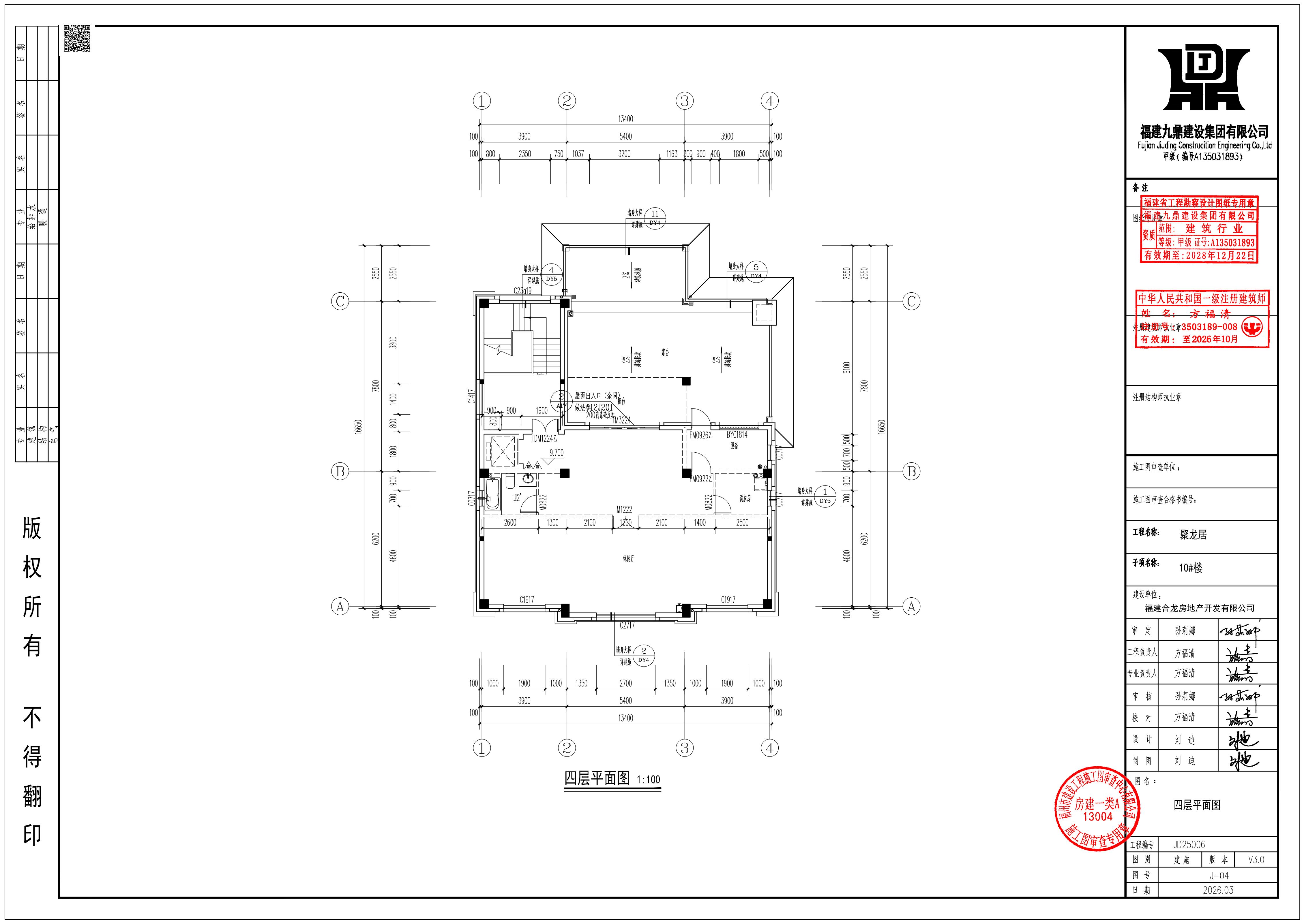
根据福建合龙房地产开发有限公司的申请,为了提高项目整体舒适性,对位于闽清县省璜镇聚龙居项目方案进行调整,调整主要内容为:1、1#楼一层A轴~QB轴交Q2轴及Q2~17轴交A轴商业门窗调整高度,QB~QD 轴交Q1轴车库卷帘门改为洞口;一层J轴交4~5轴、13~14轴处门扇修改为子母门。2、2#楼一层F轴交2~4轴、10~12轴处门扇修改为子母门。3、3#楼一层1/OA轴~H轴交1轴商业门窗调整高度,8~9轴交A轴走廊处门移至南侧,走廊内侧窗户取消;一层K轴交11轴处门扇修改为子母门,12~15轴交C轴门处坡道修改。4、5#楼一至四层B轴交1\6\12\17轴取消图纸电梯表达;二三层露台处及四层的门高度调整。5、6#楼一至四层B轴交7\12轴及G轴交3轴取消图纸电梯表达;二三层露台处及四层的门高度调整;由于6#楼取消电梯表达,总平面6#楼四层屋面取消电梯顶板表达。6、7#、8#楼一至四层C轴交2\5\8轴取消图纸电梯表达;三四层露台处门高度调整。7、9#楼一至四层C轴交3\6轴取消图纸电梯表达;三四层露台处门高度调整。8、10#楼一层A轴交3~4轴处门改至4轴交A~B 轴处,同时增加雨披;卫生间改至活动室内部;四层露台处门高度调整;立面窗套由涂料改为石材。调整后的总平面布置方案及各项技术指标符合规划设计条件,我局拟同意该调整,现根据《中华人民共和国城乡规划法》相关规定将该调整进行公示,公示日期2026年4月13日至2026年4月22日,公示期限内本项目利害关系人若有意见,应以书面形式向我局反映。如要求听证,应在公示期限内书面向我局提出申请。(联系电话22378289,联系地址:闽清县梅城镇溪滨路1号行政服务中心6楼,闽清县城乡规划服务中心,邮编350800)
附: 总平面图(调整前后)
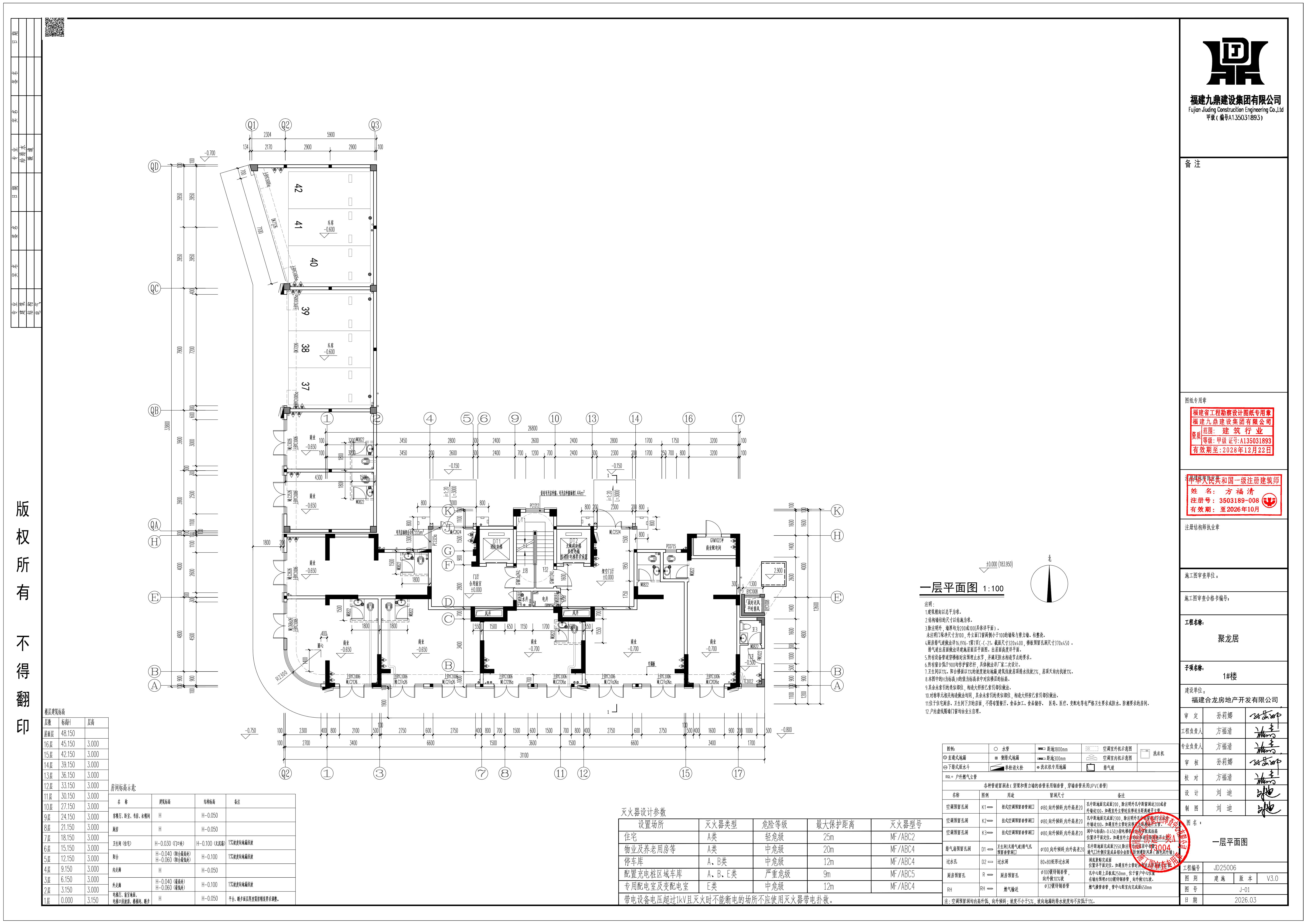
1#楼一层平面图(调整前后)
1#楼立面图(调整前后)
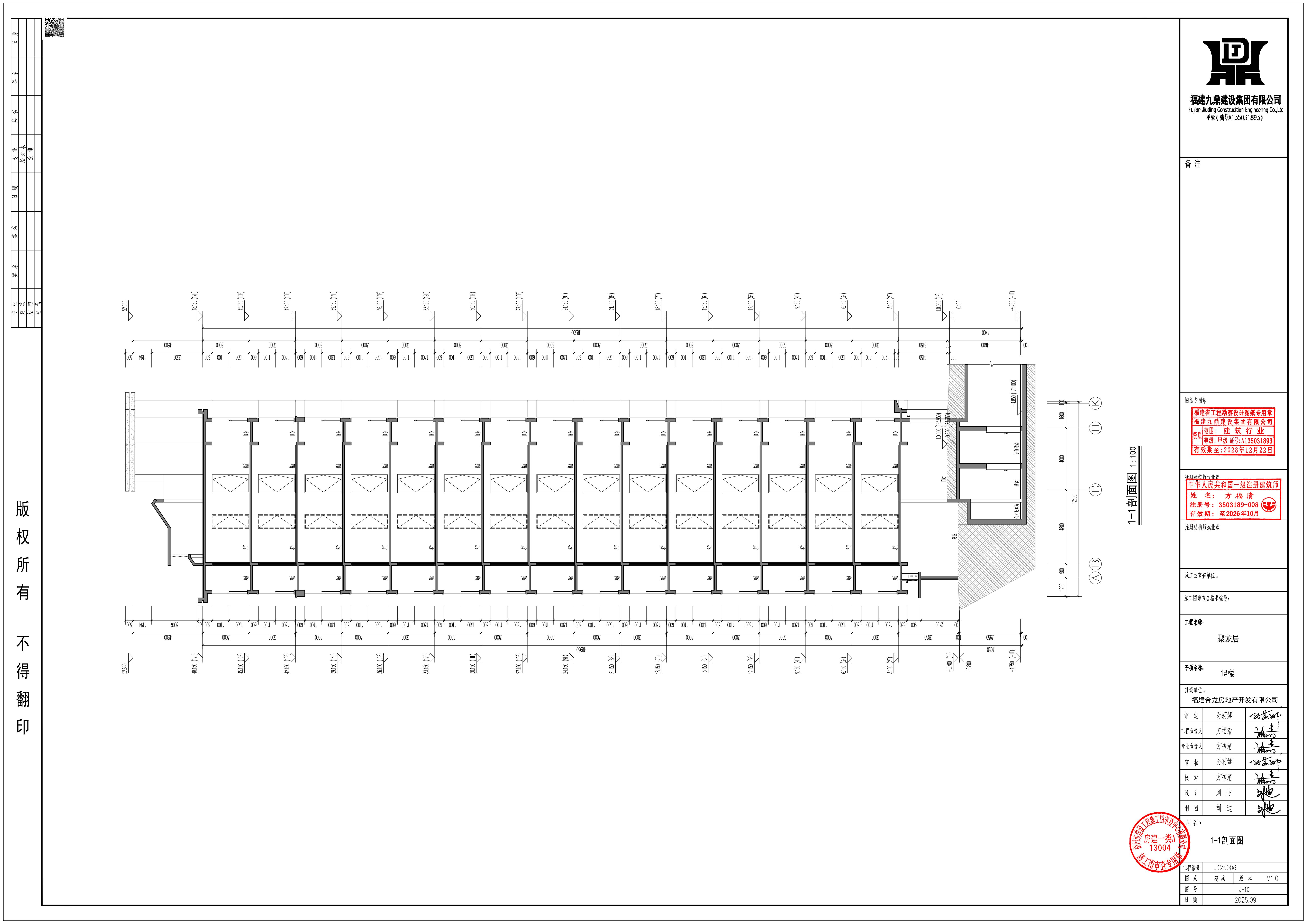
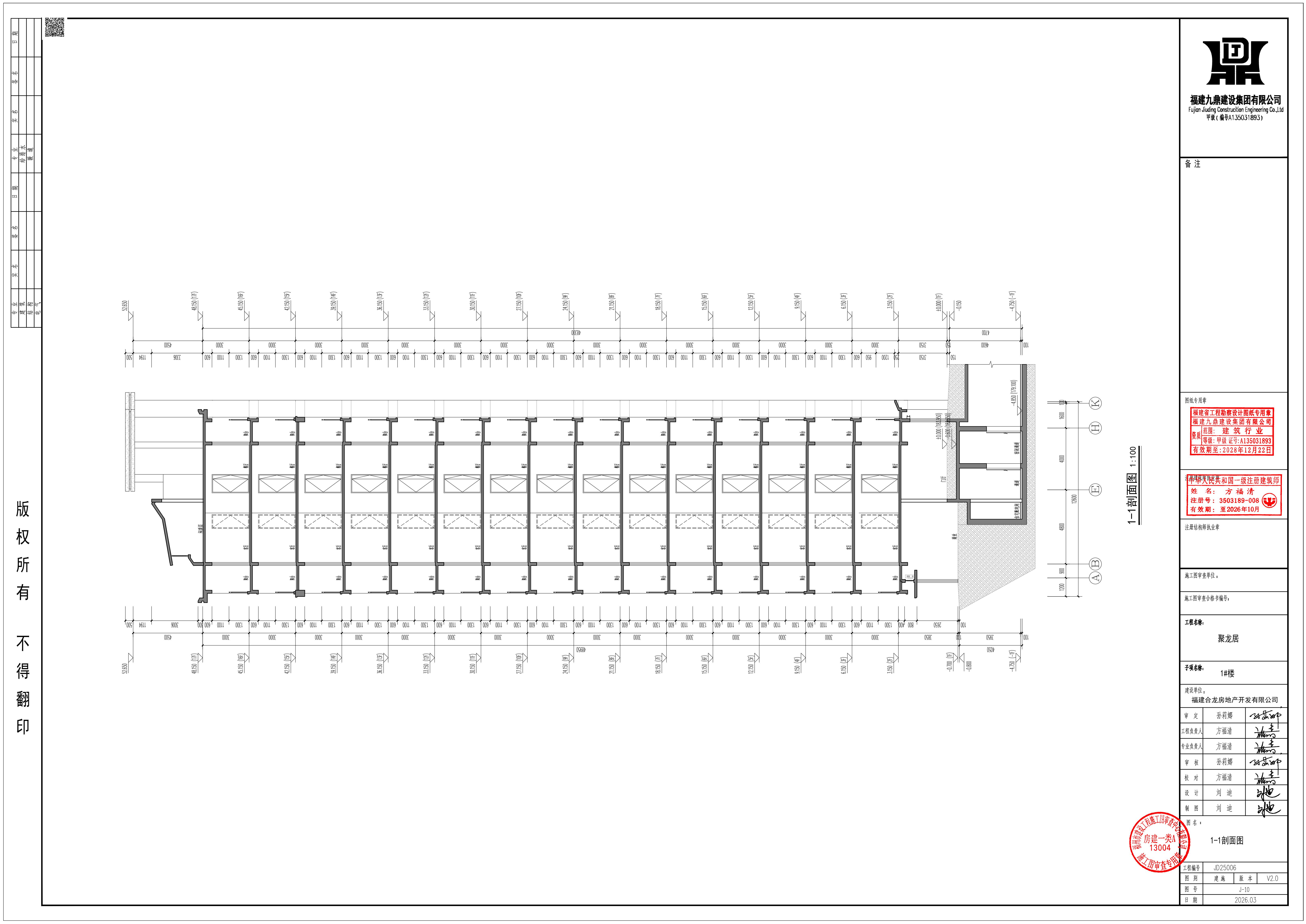
1#楼1-1剖面图(调整前后)
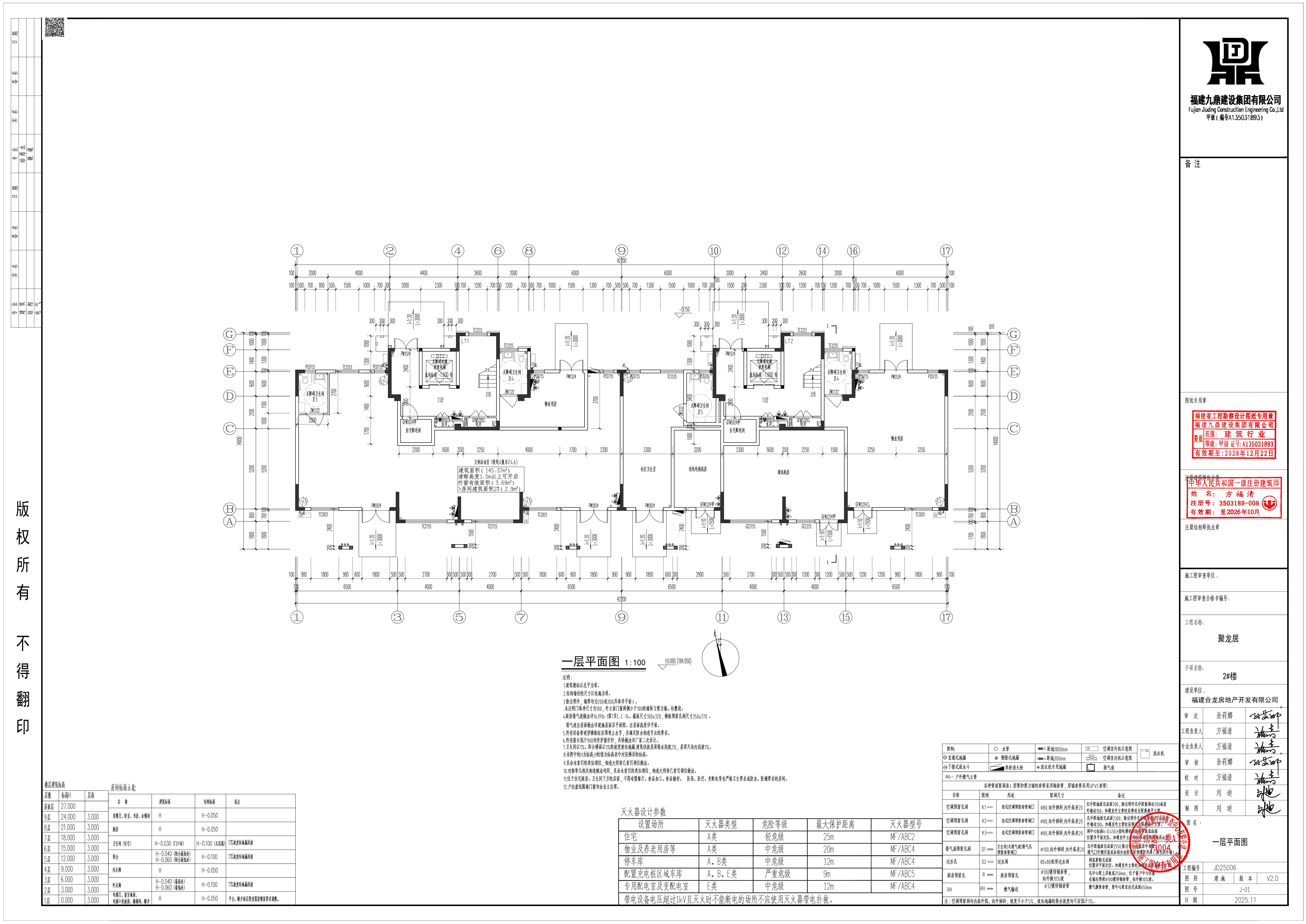
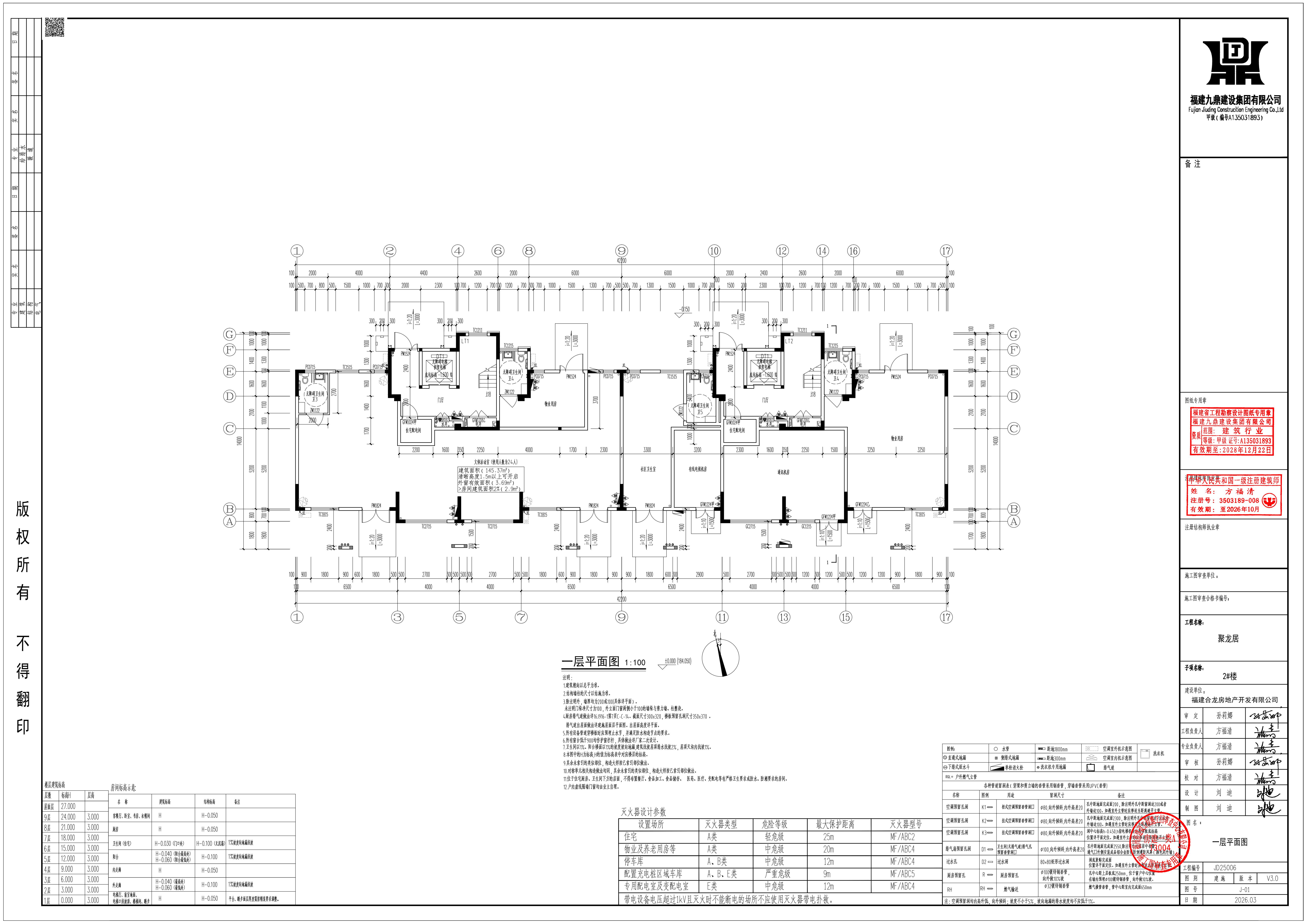
2#楼一层平面图(调整前后)
2#楼立面图(调整前后)
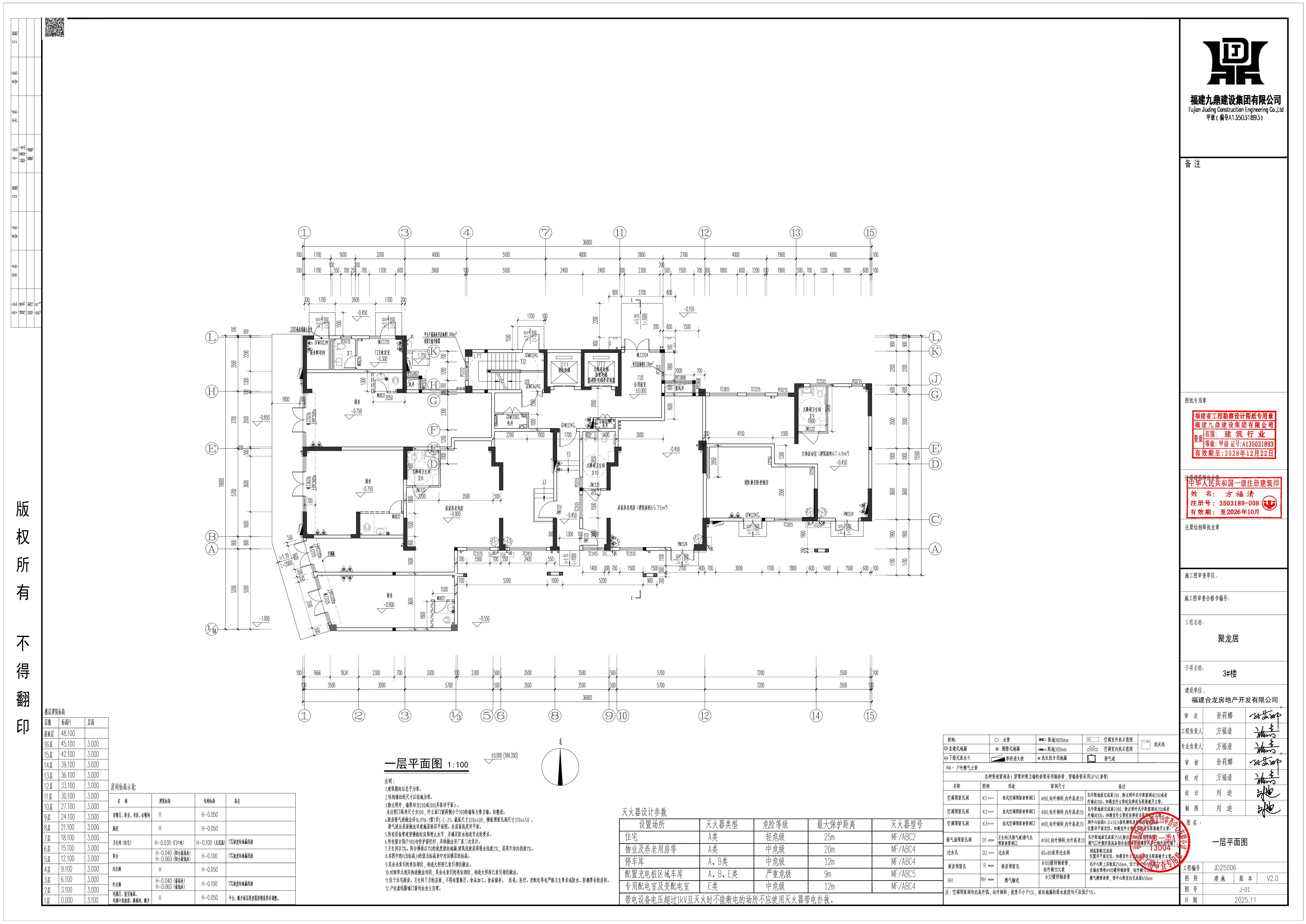
3#楼一层平图图(调整前后)
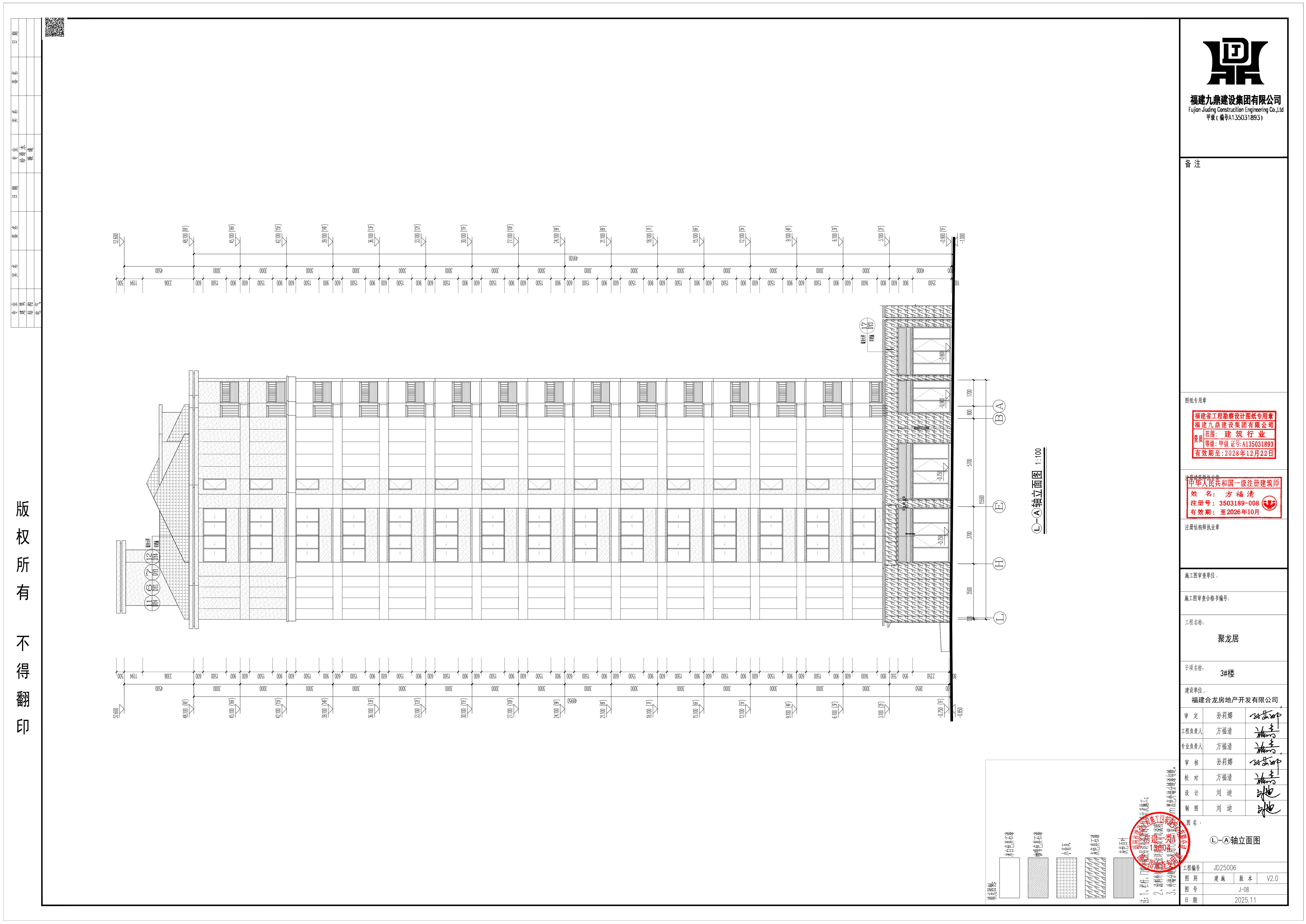
3#楼立面图(调整前后)
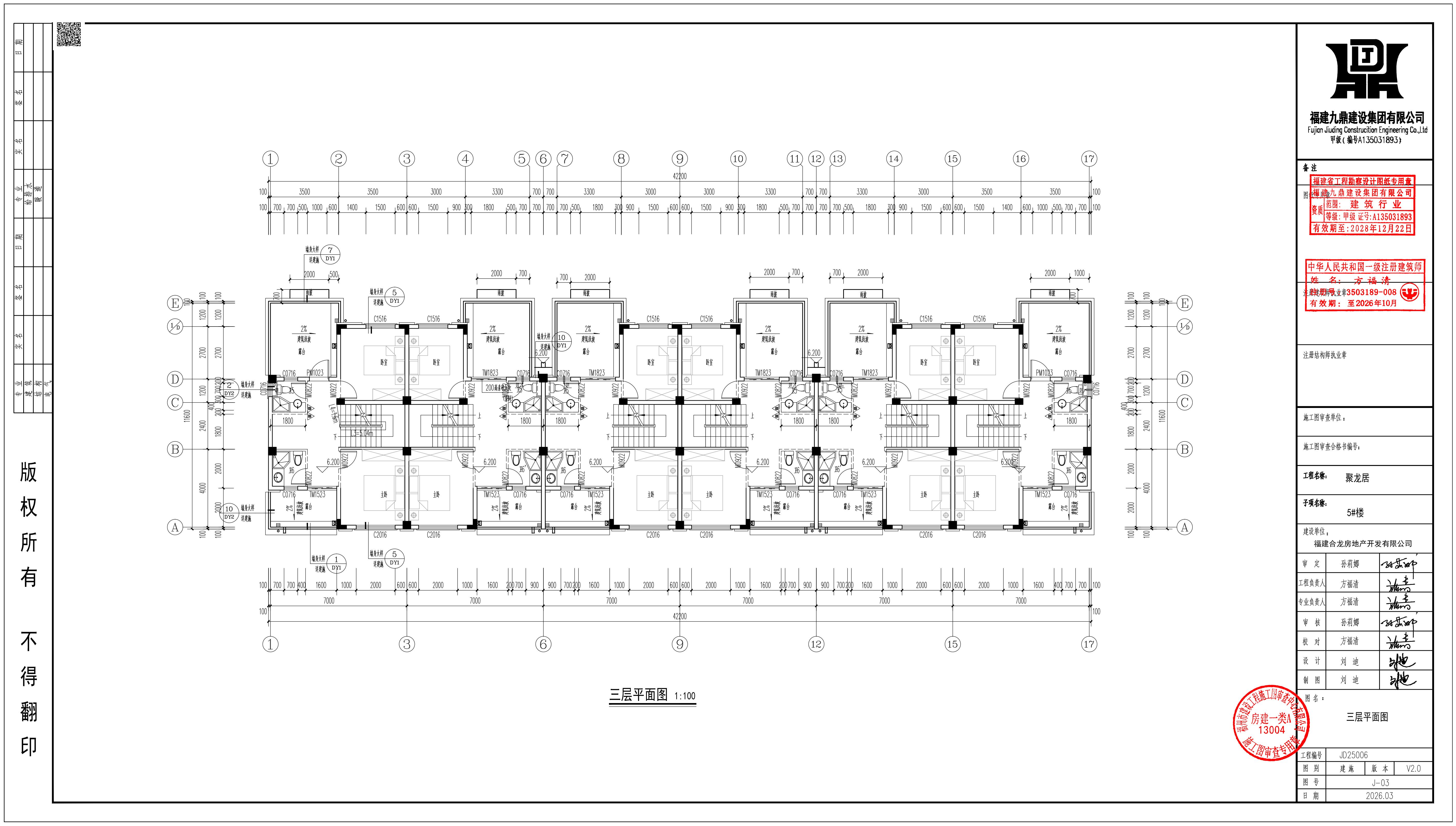
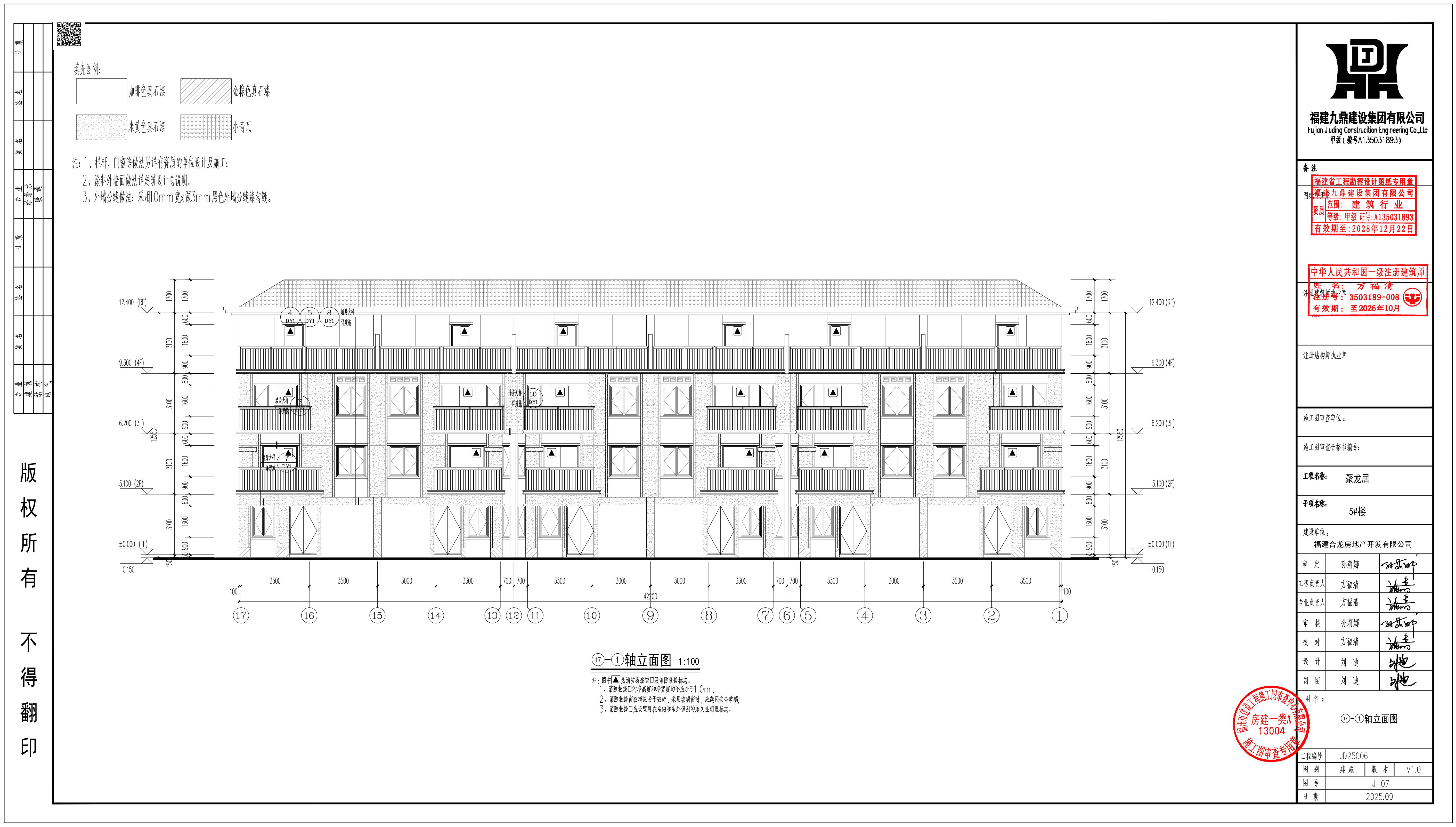
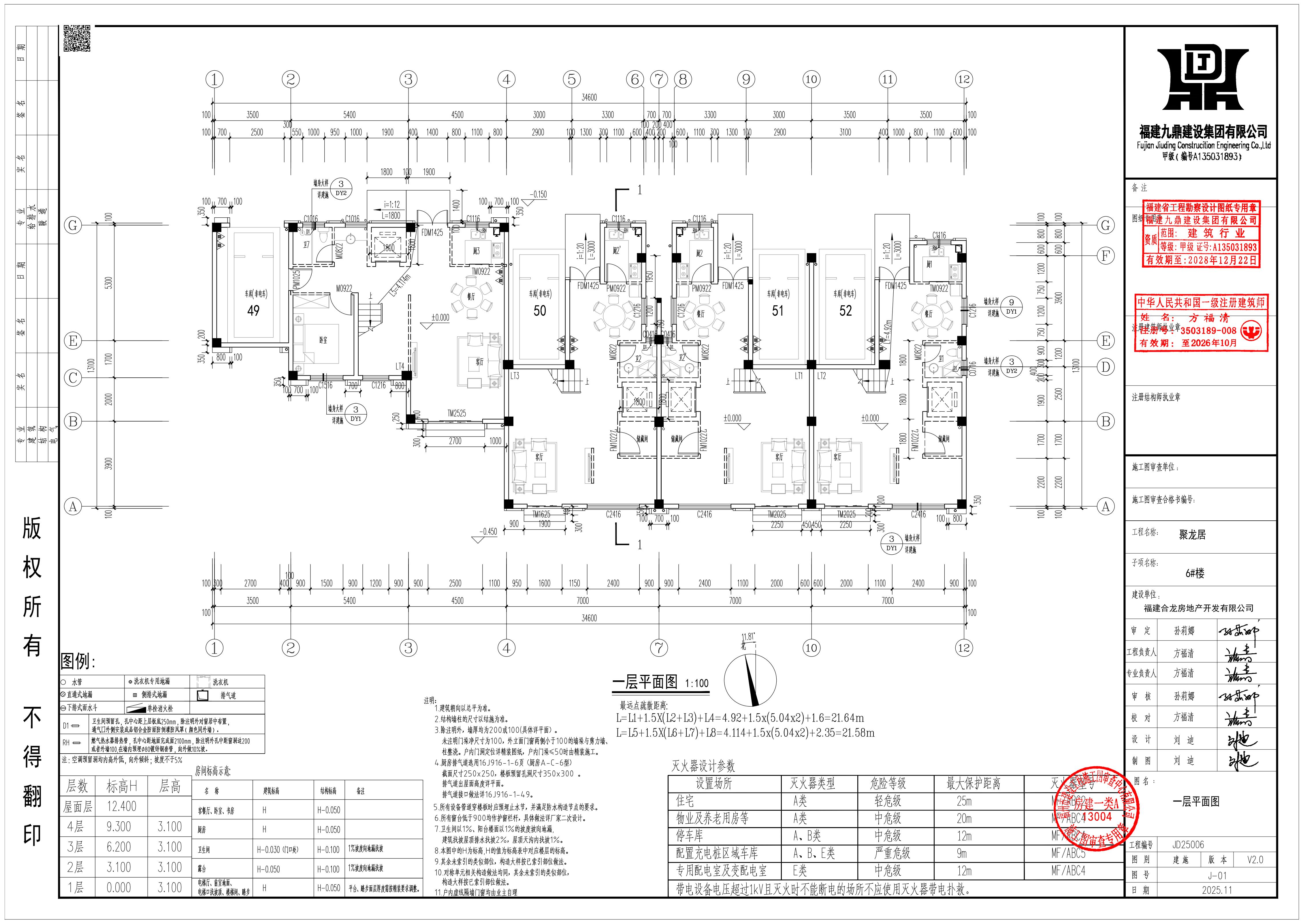
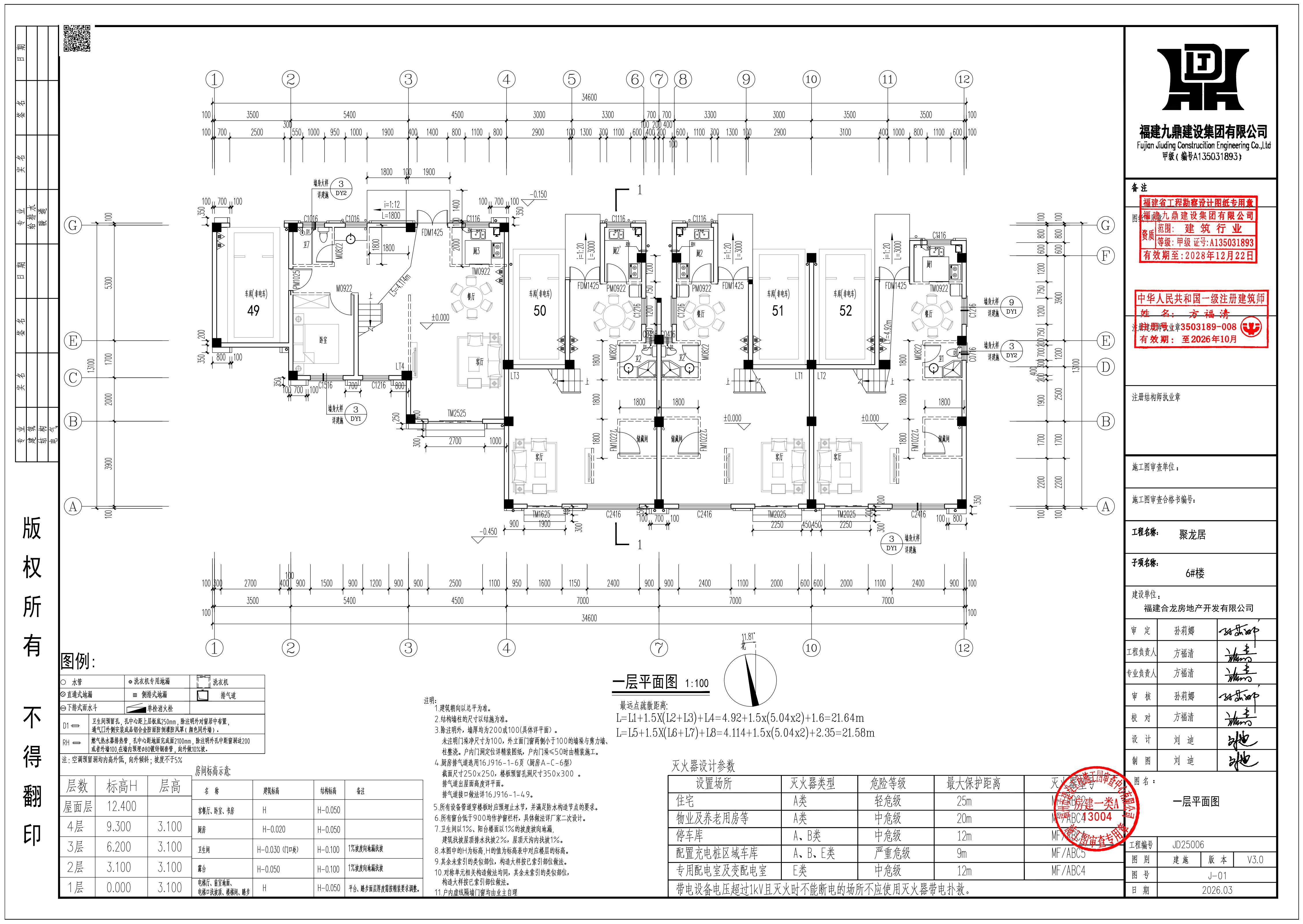
5#楼一至四层平面图(调整前后)
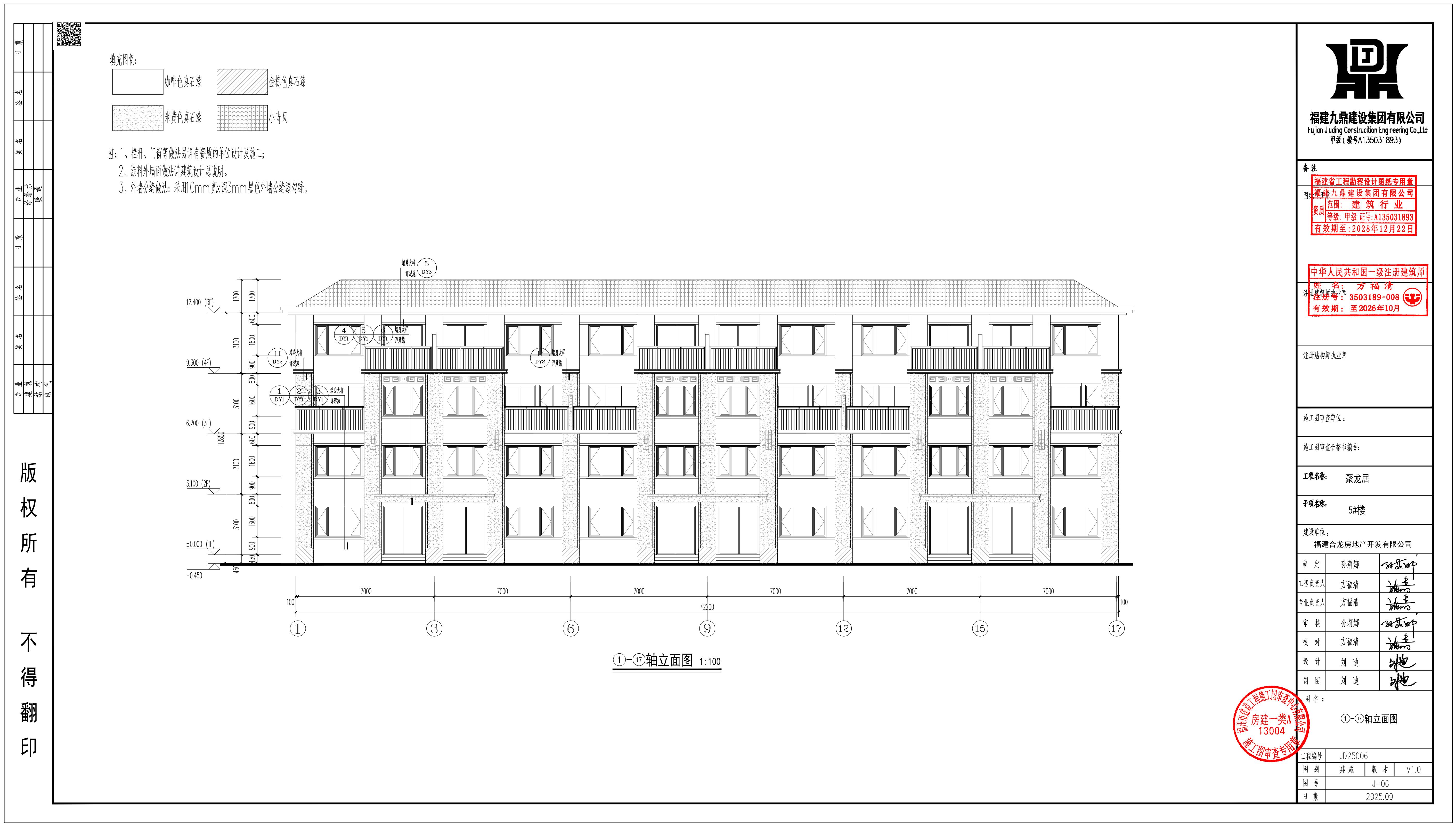
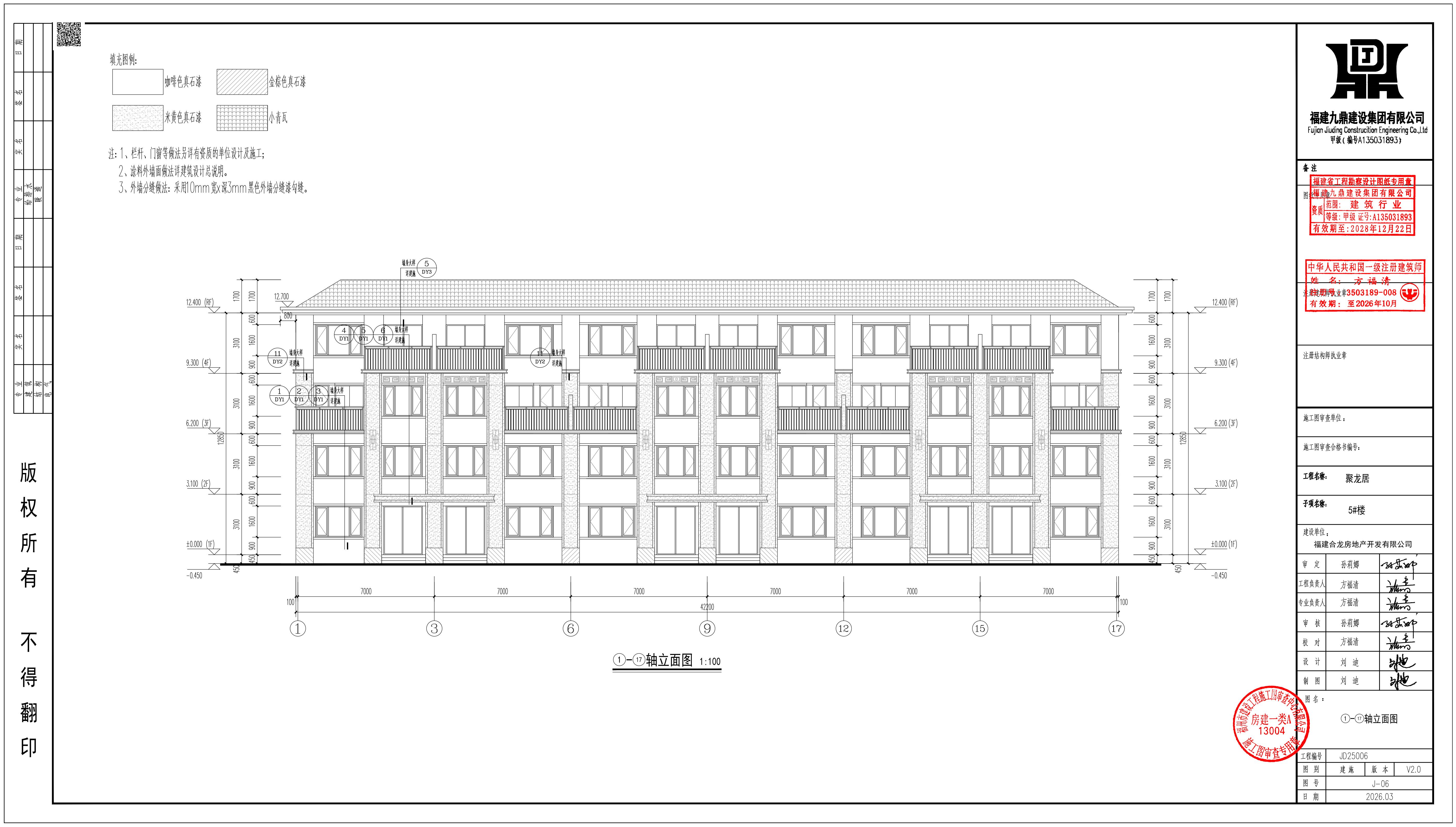
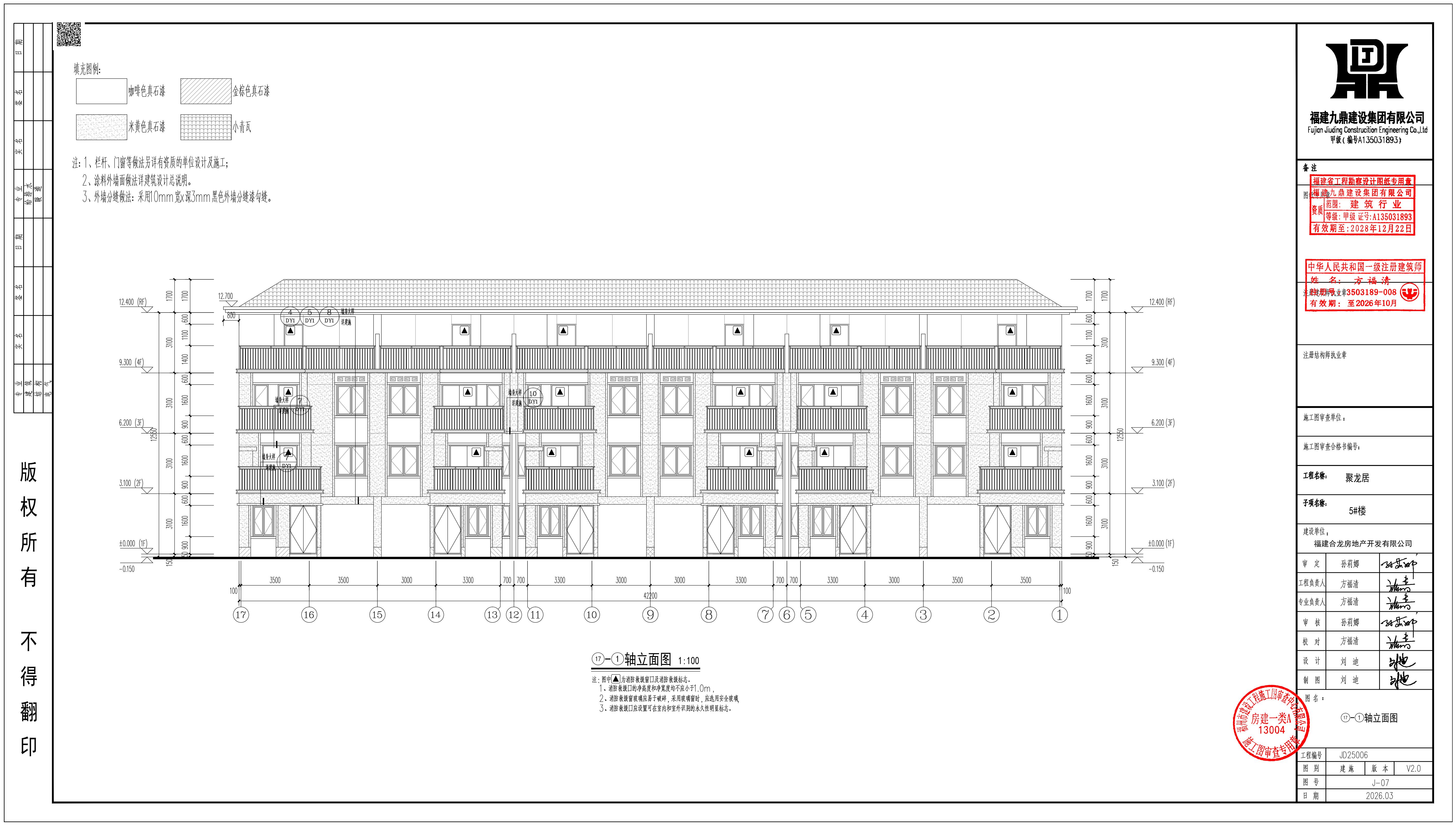
5#楼立面图(调整前后)
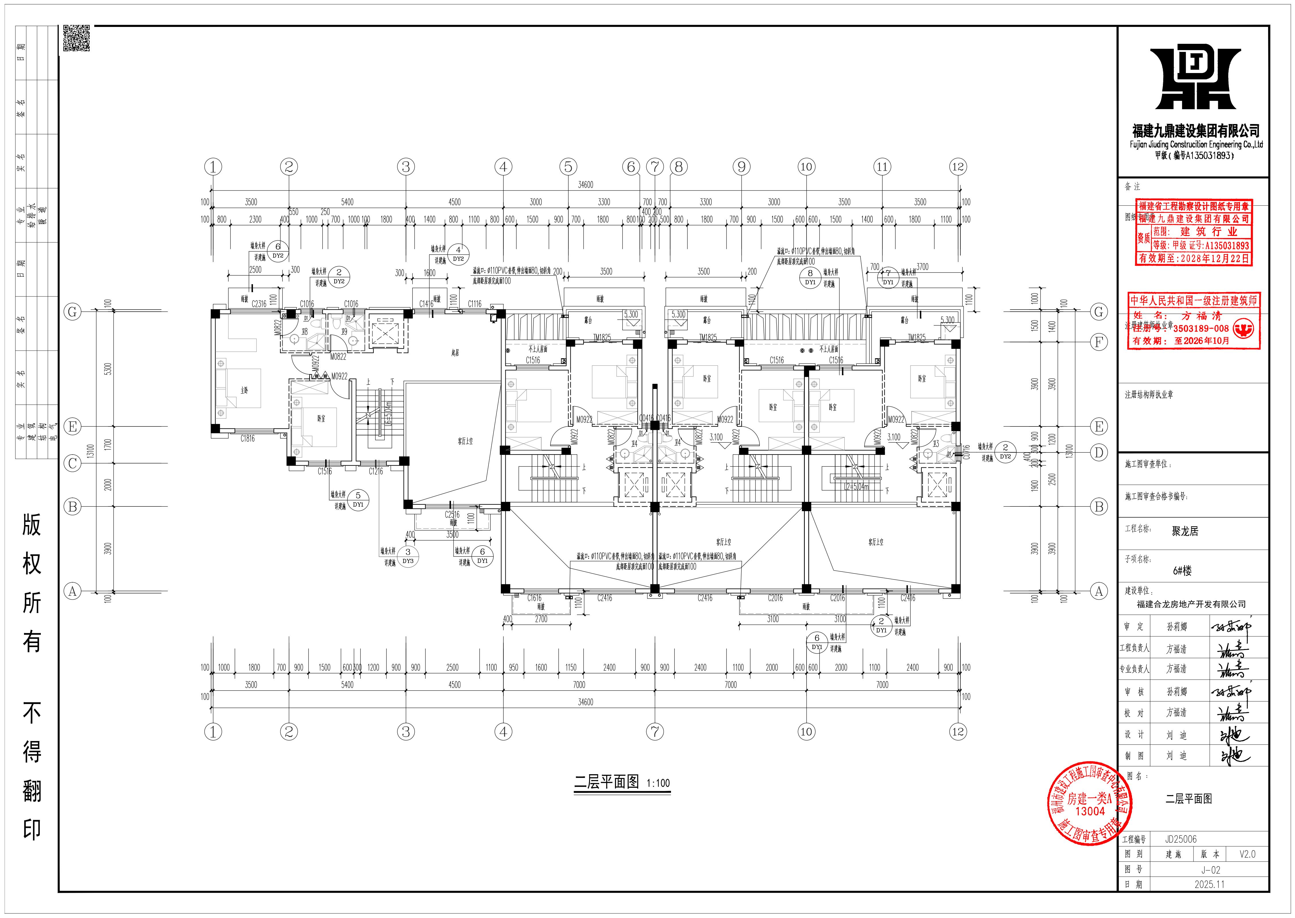
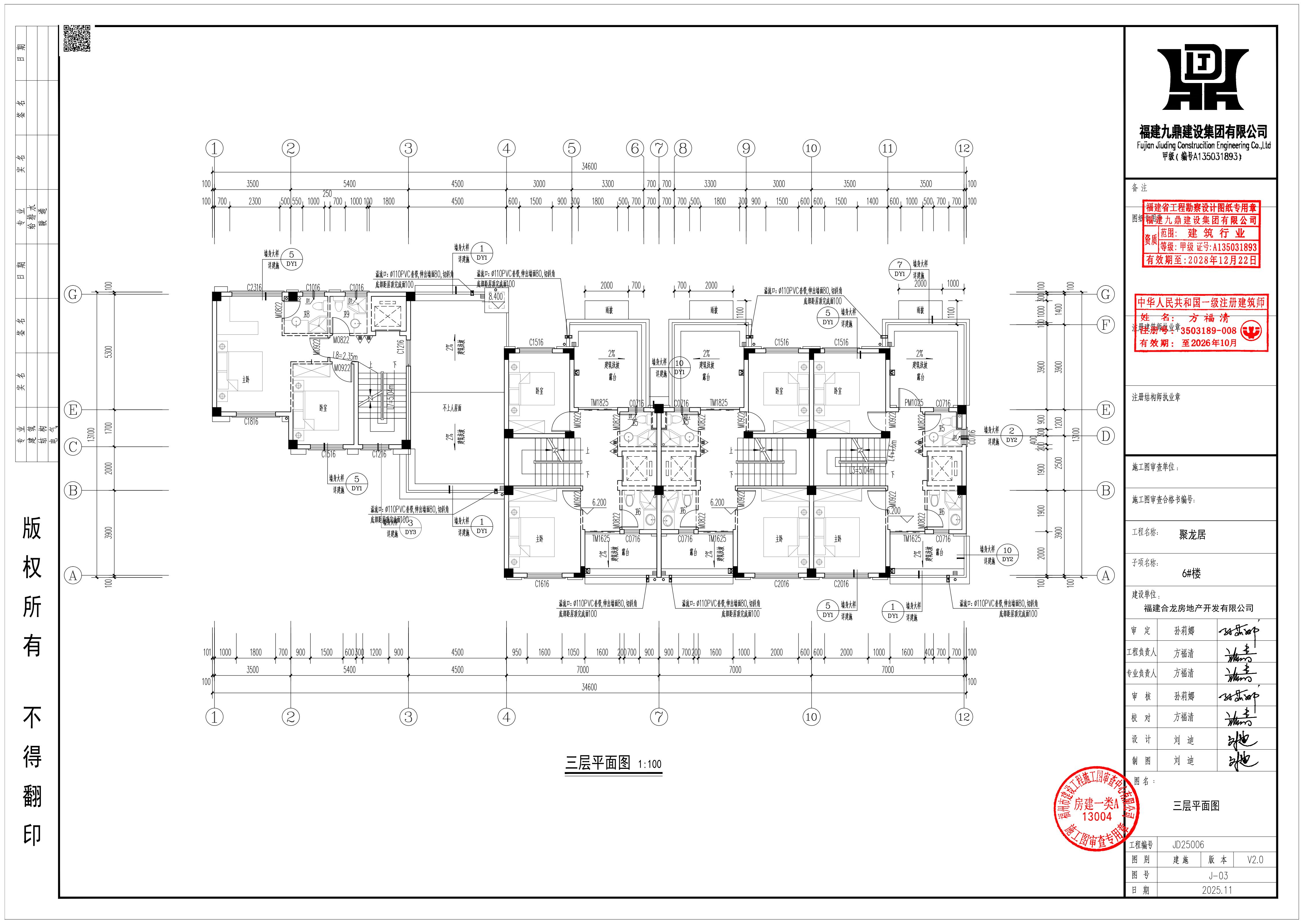
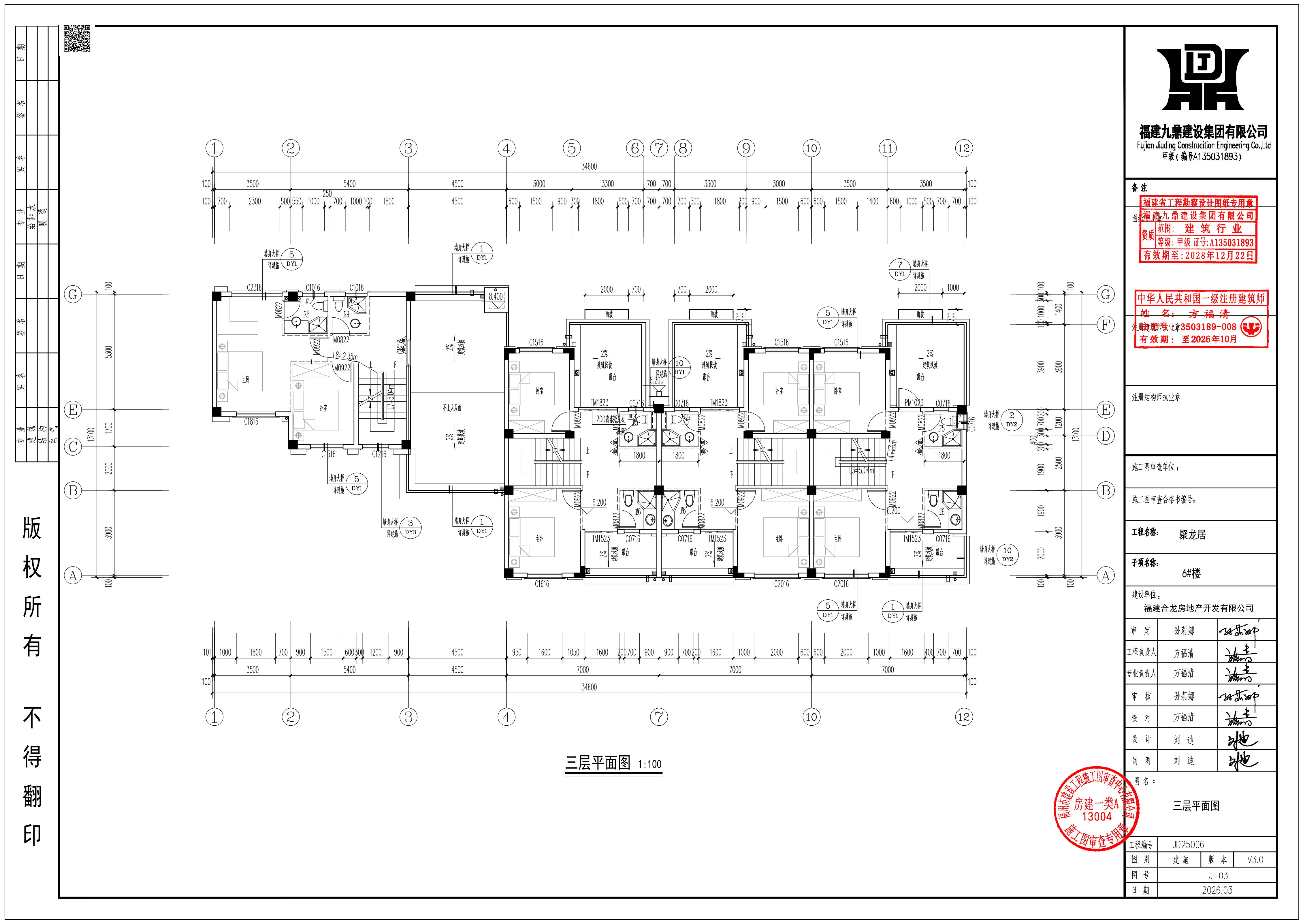
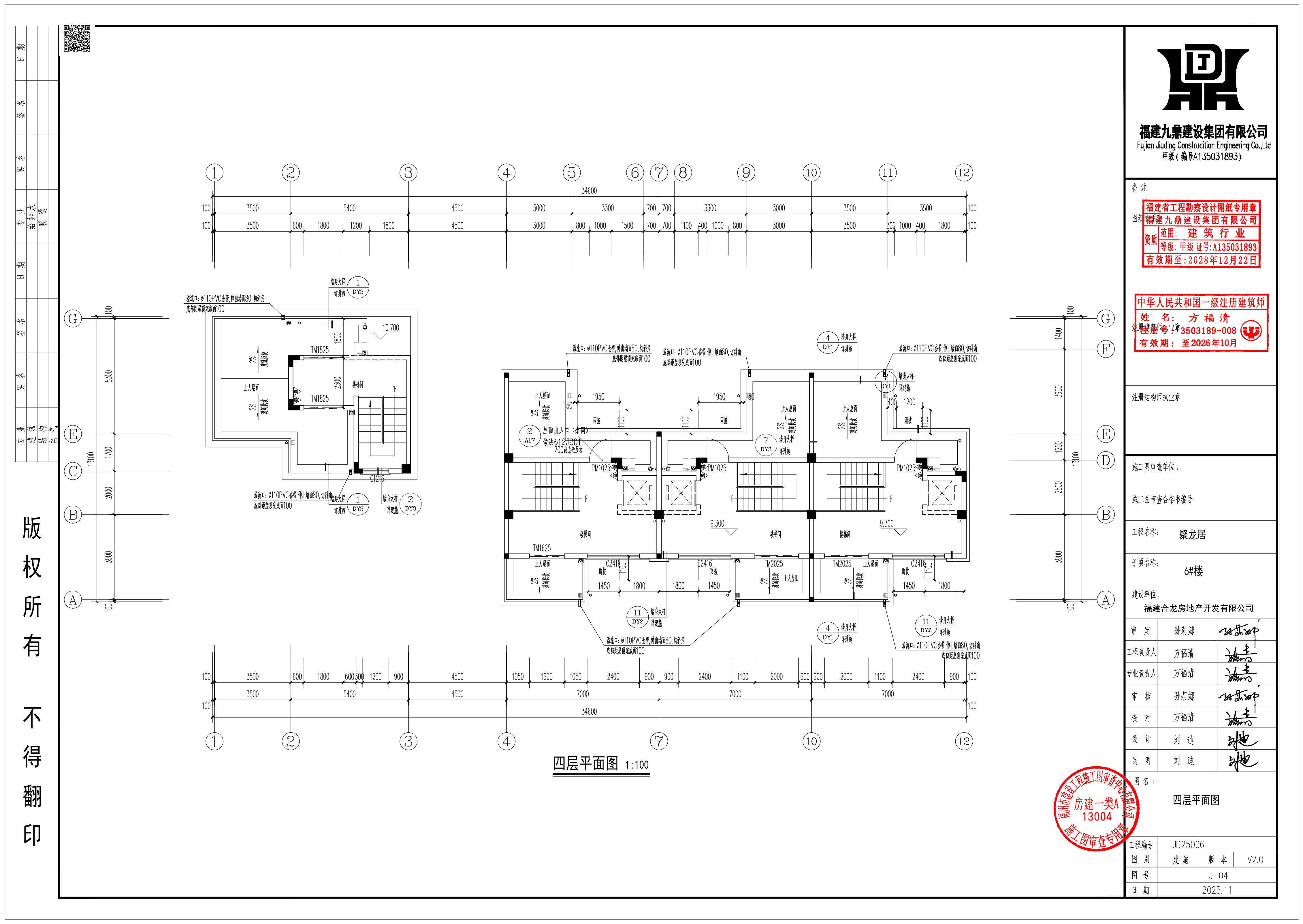
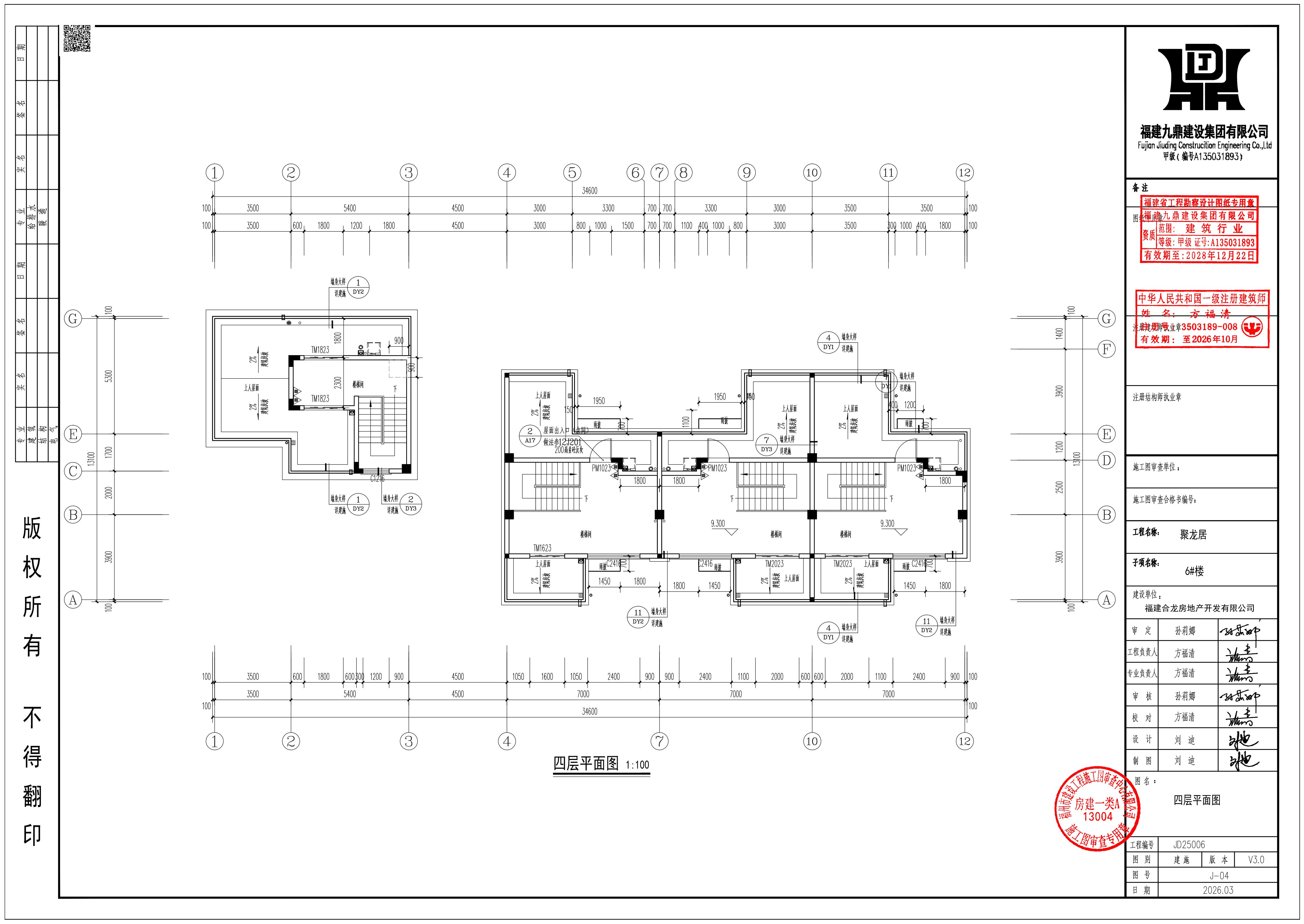
6#楼一至四层平面图(调整前后)
6#楼屋面层平面图(调整前后)
6#楼立面图(调整前后)
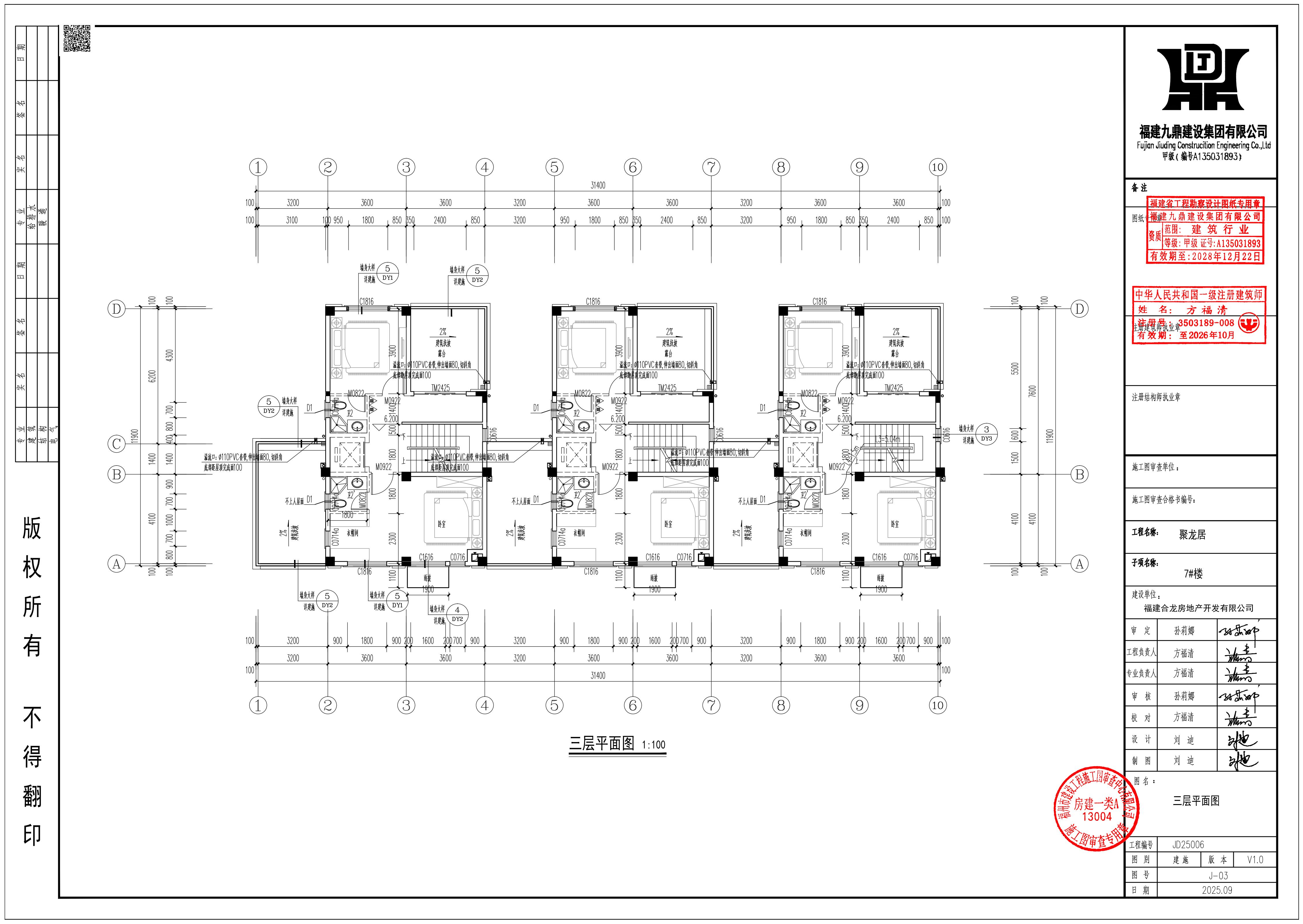
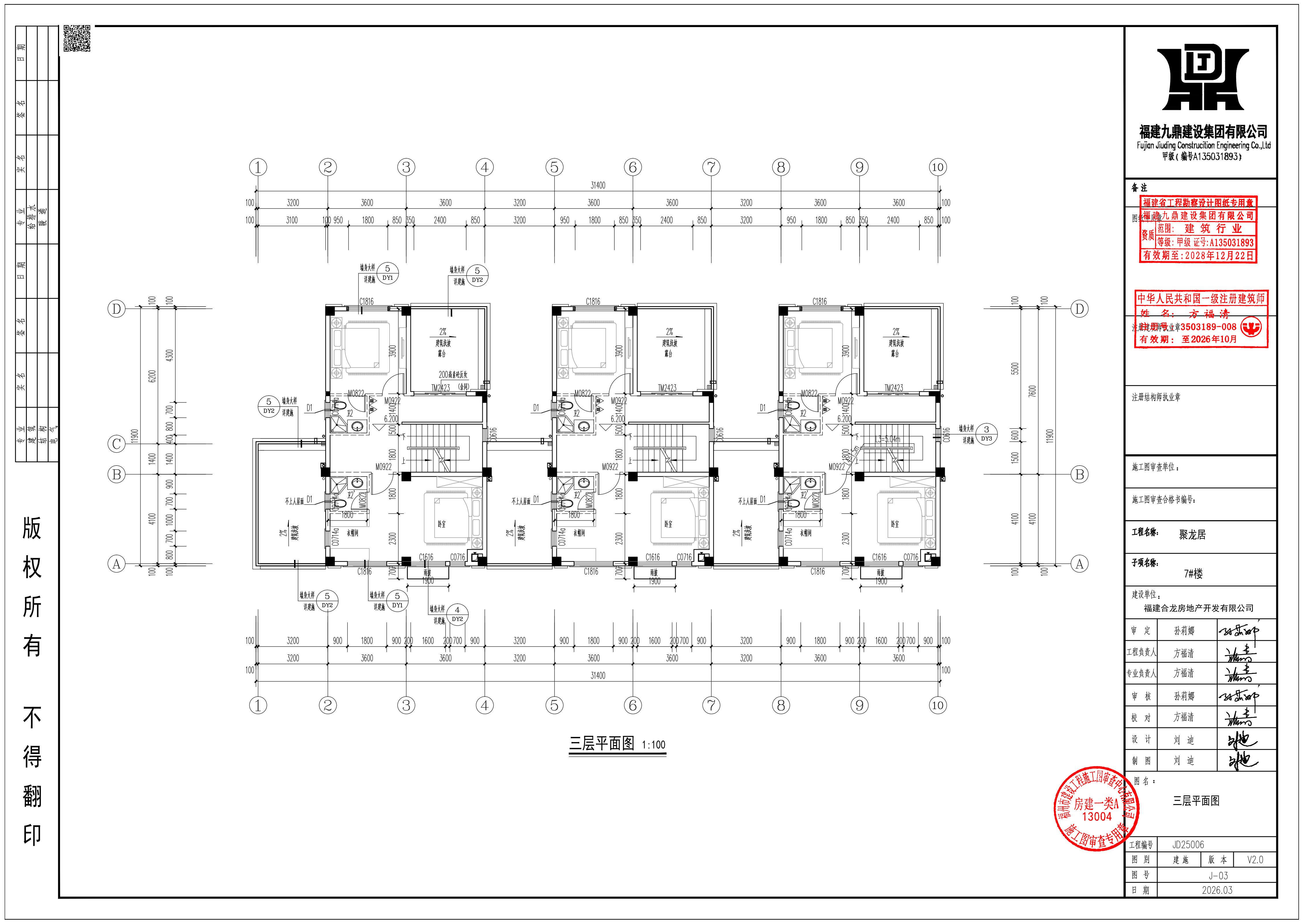
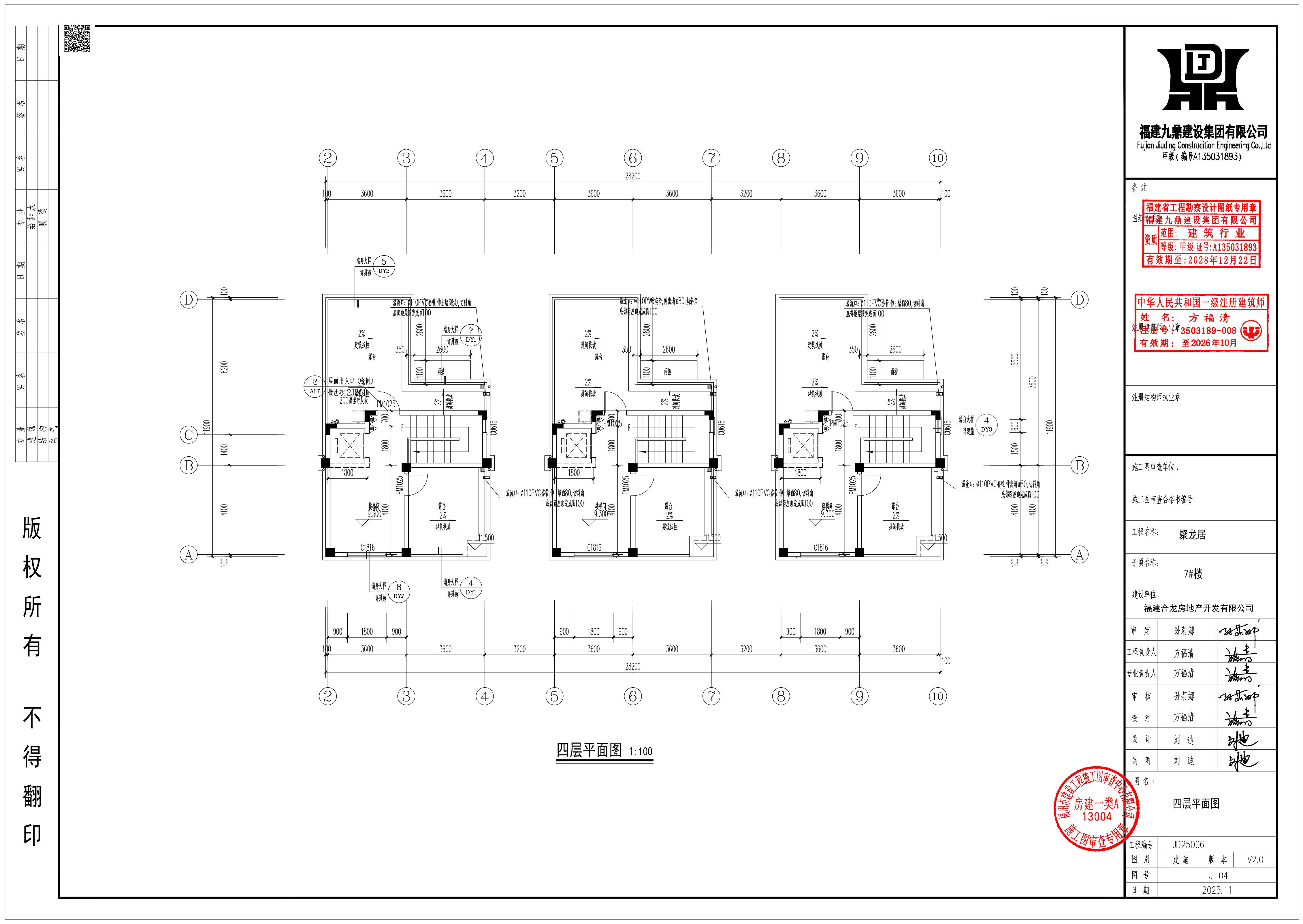
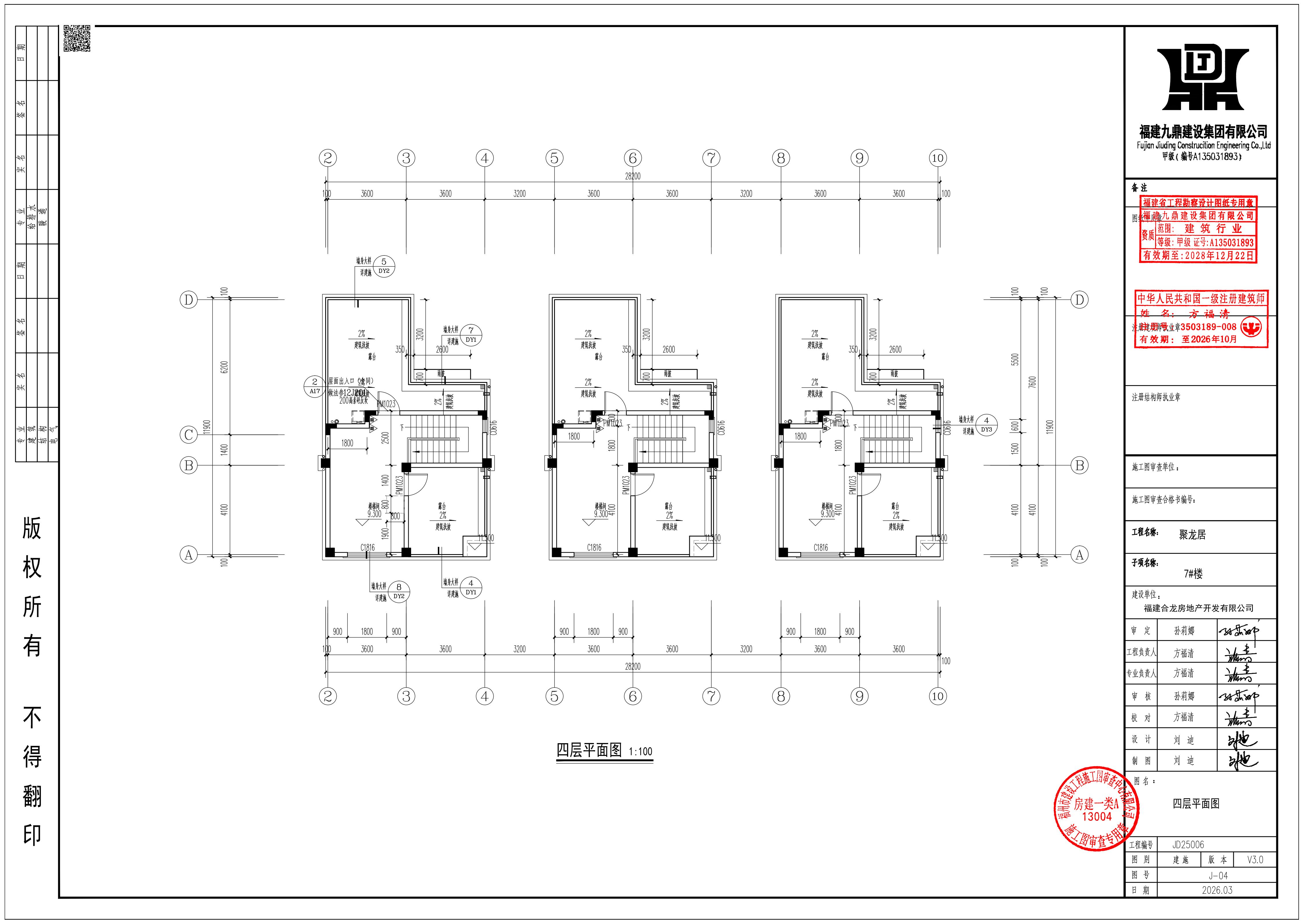
7#楼一至四层平面图(调整前后)
7#楼立面图(调整前后)
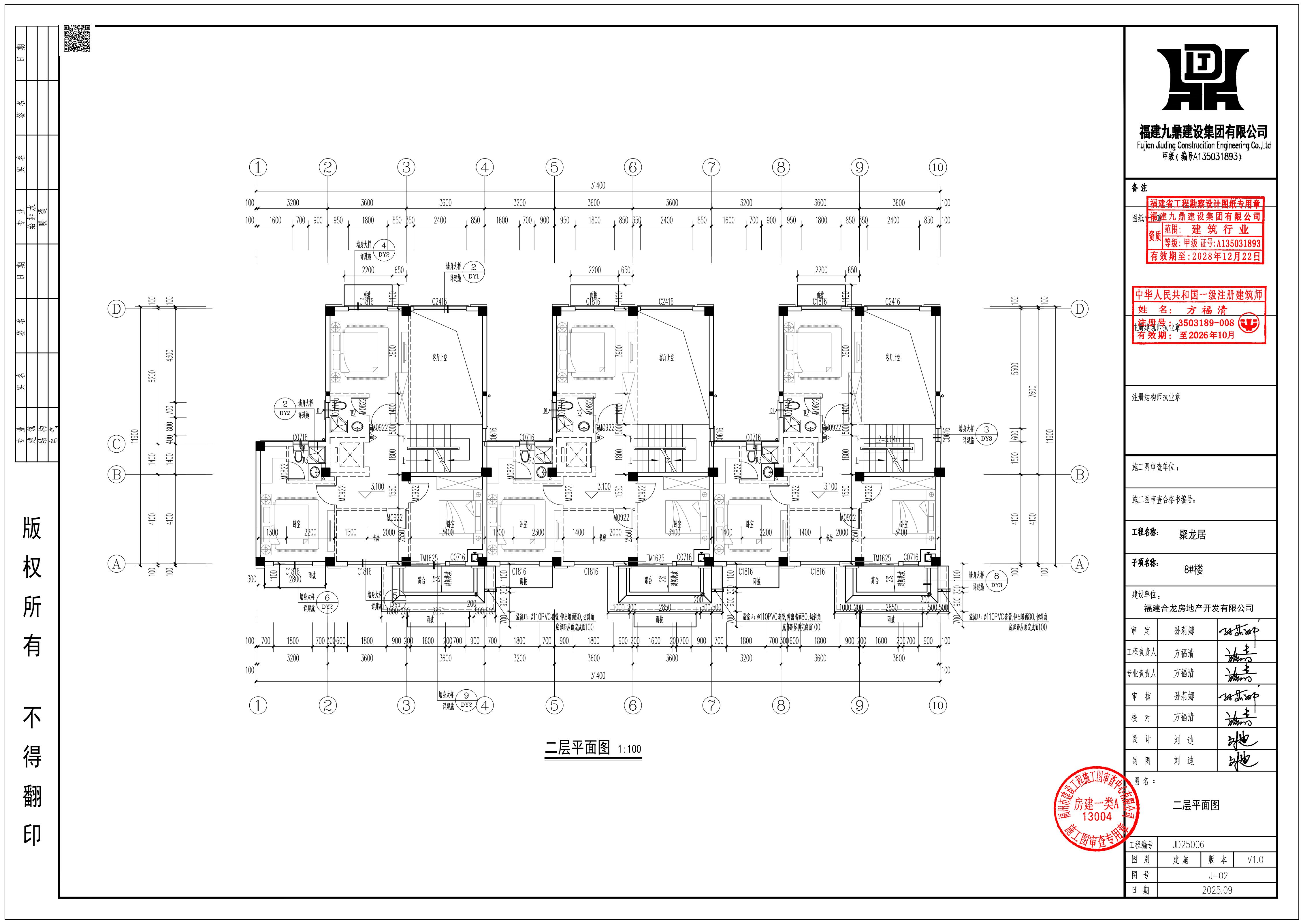
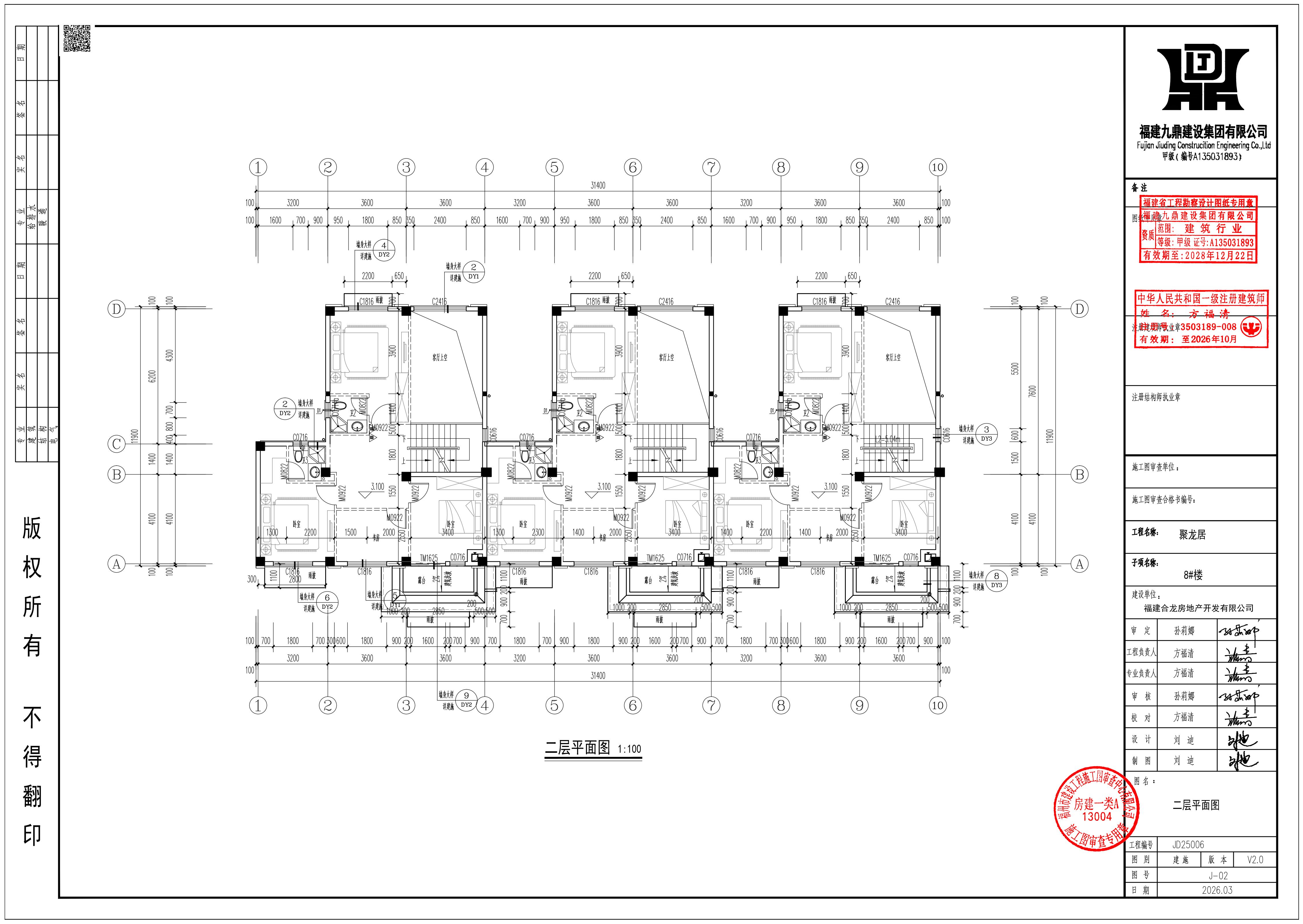
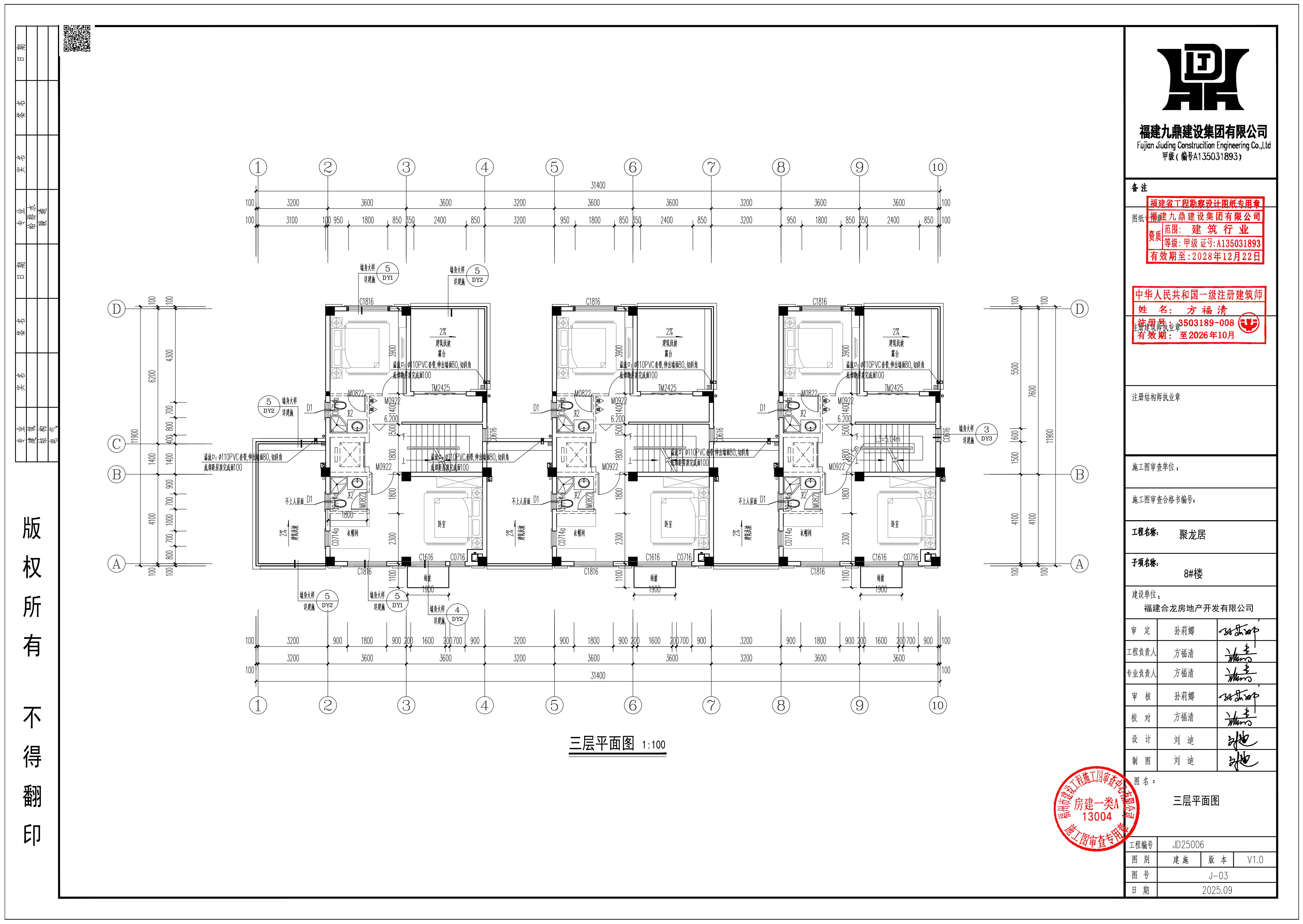
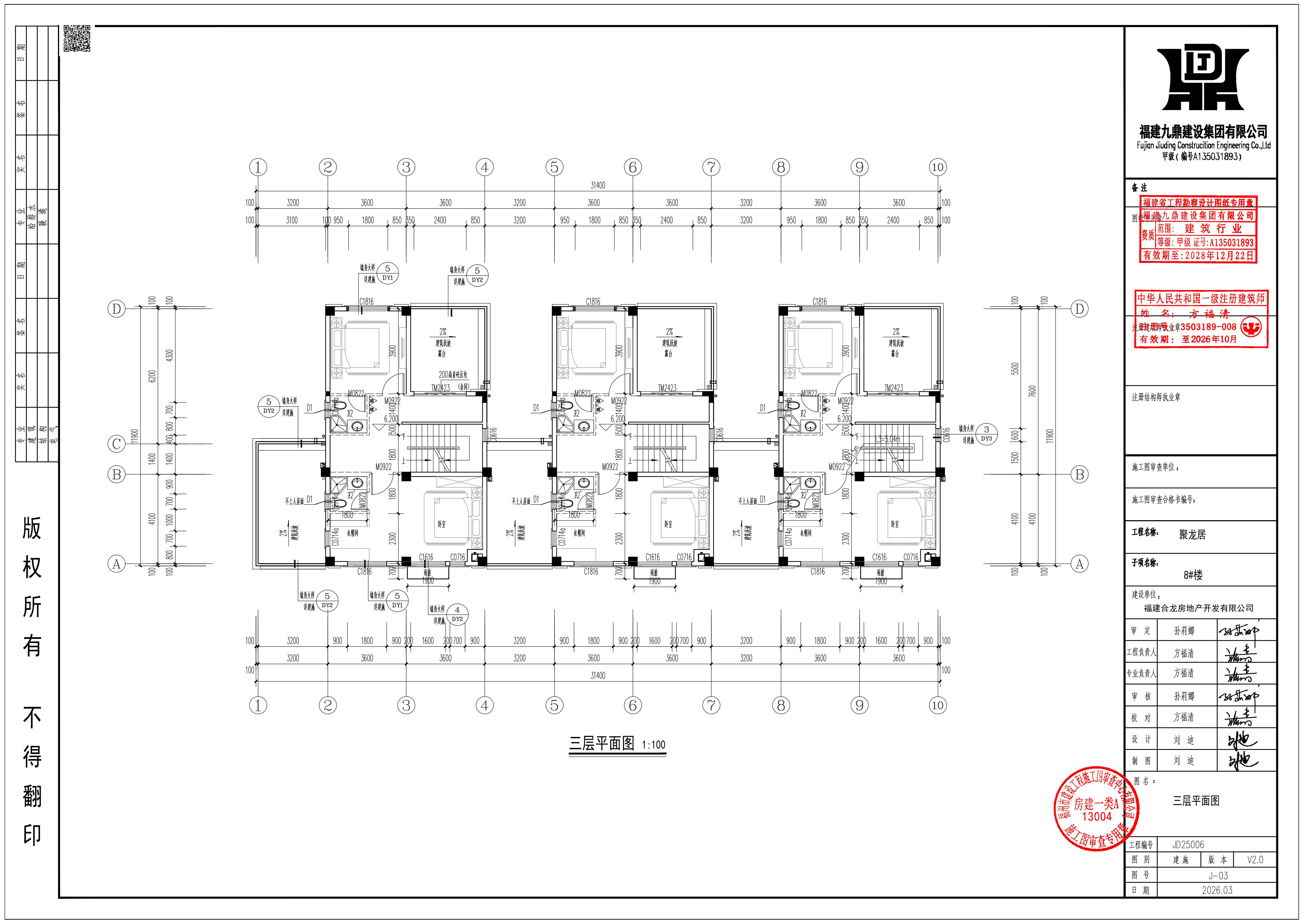
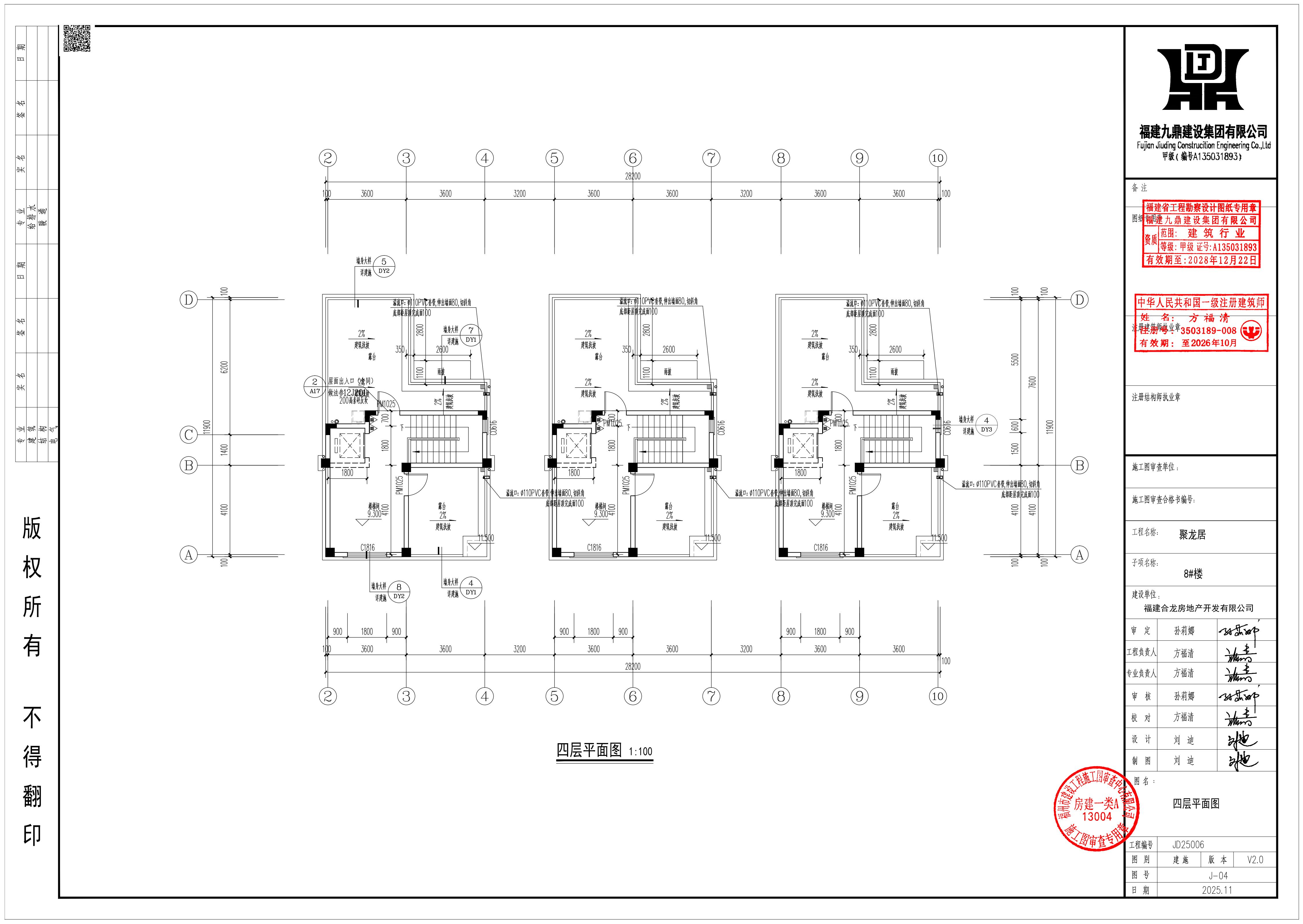
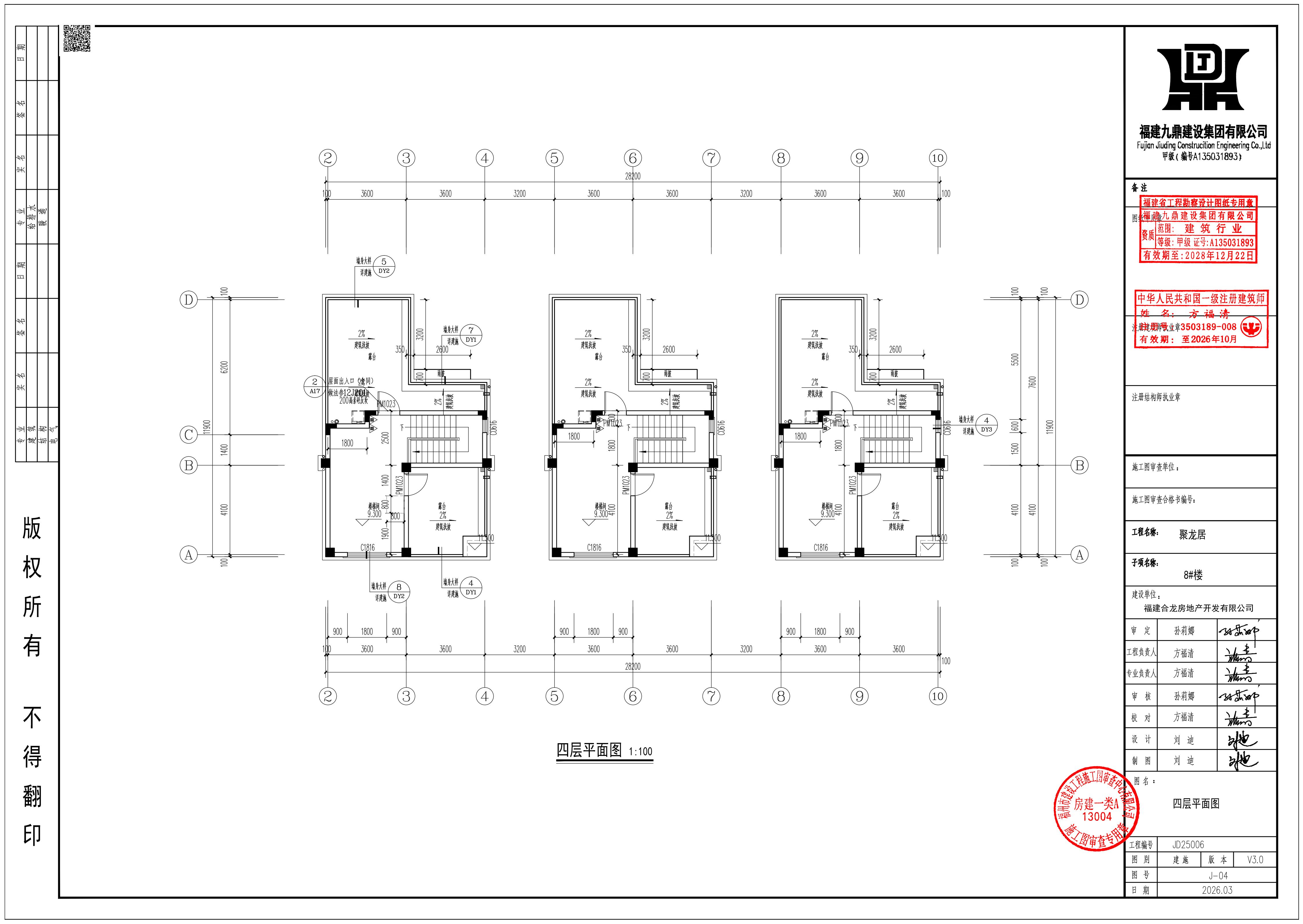
8#楼一至四层平面图(调整前后)
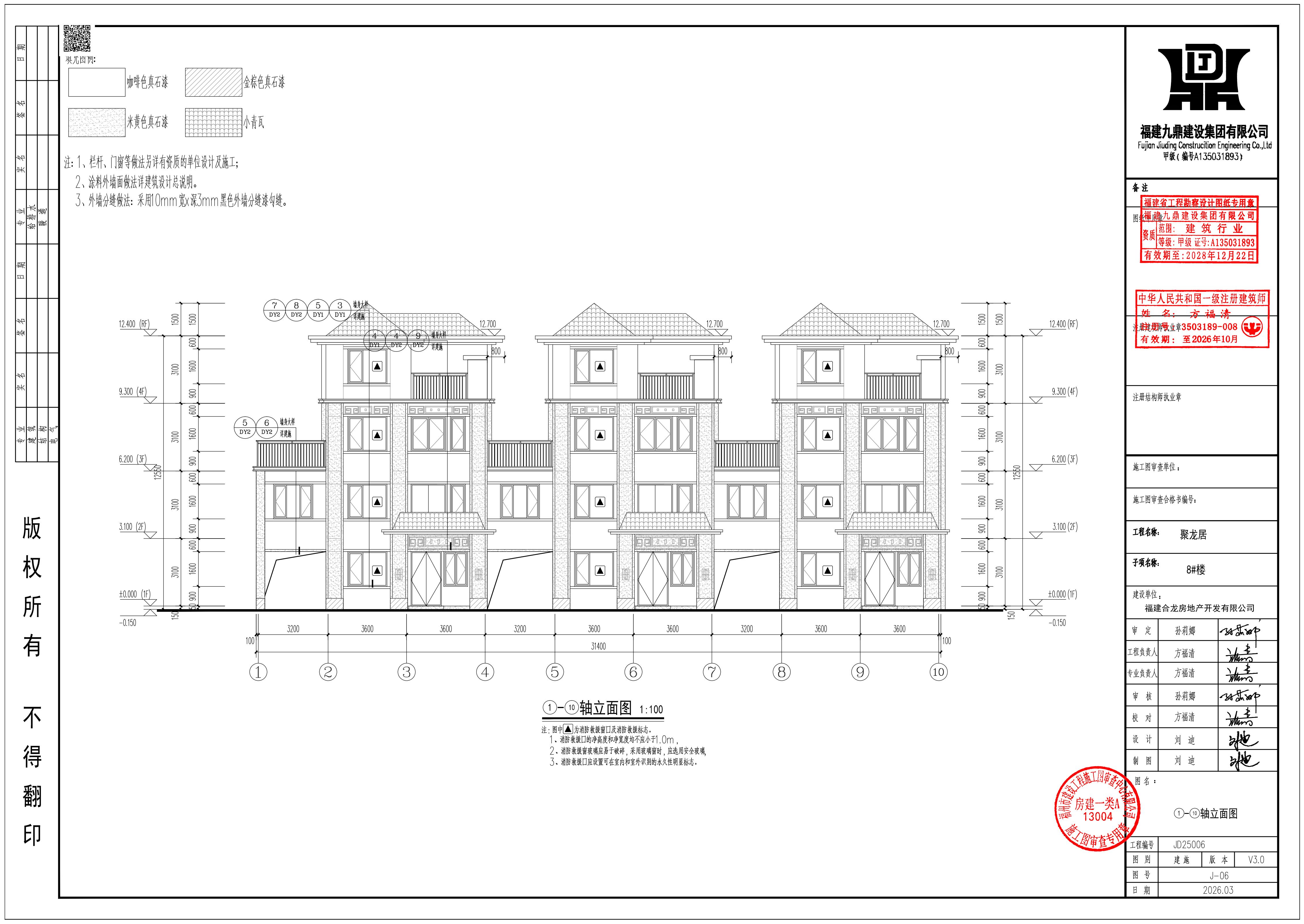
8#楼立面图(调整前后)
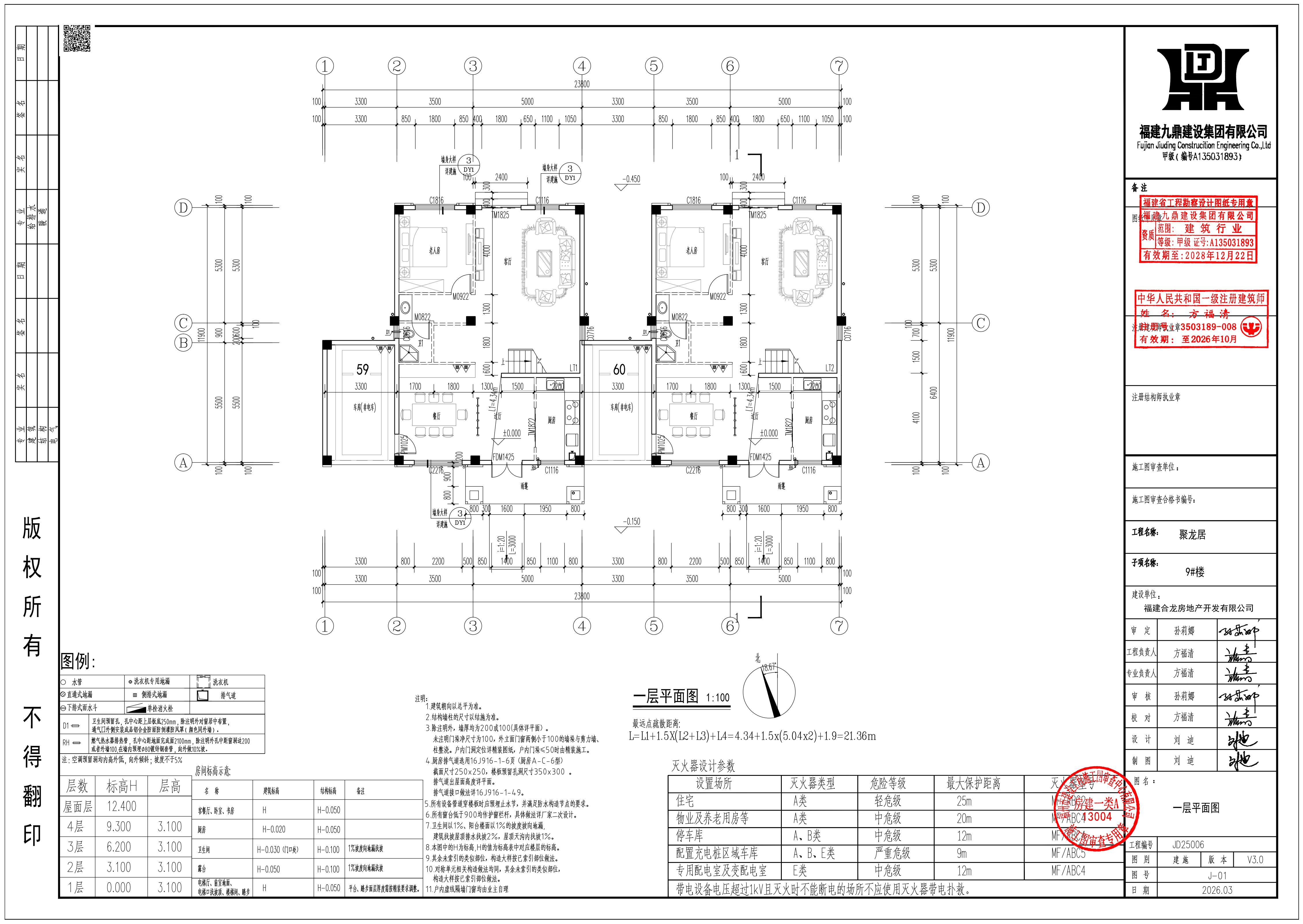
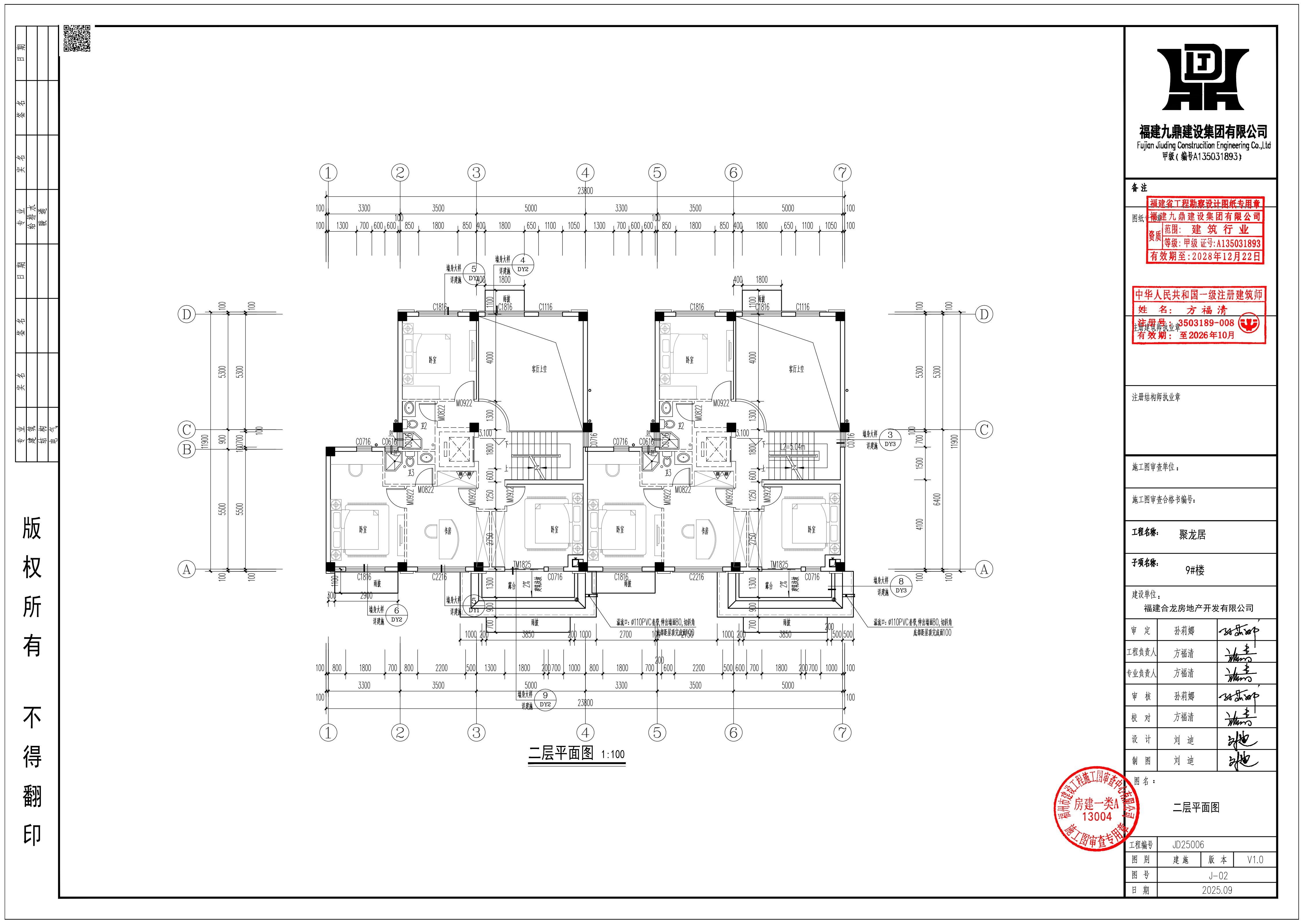
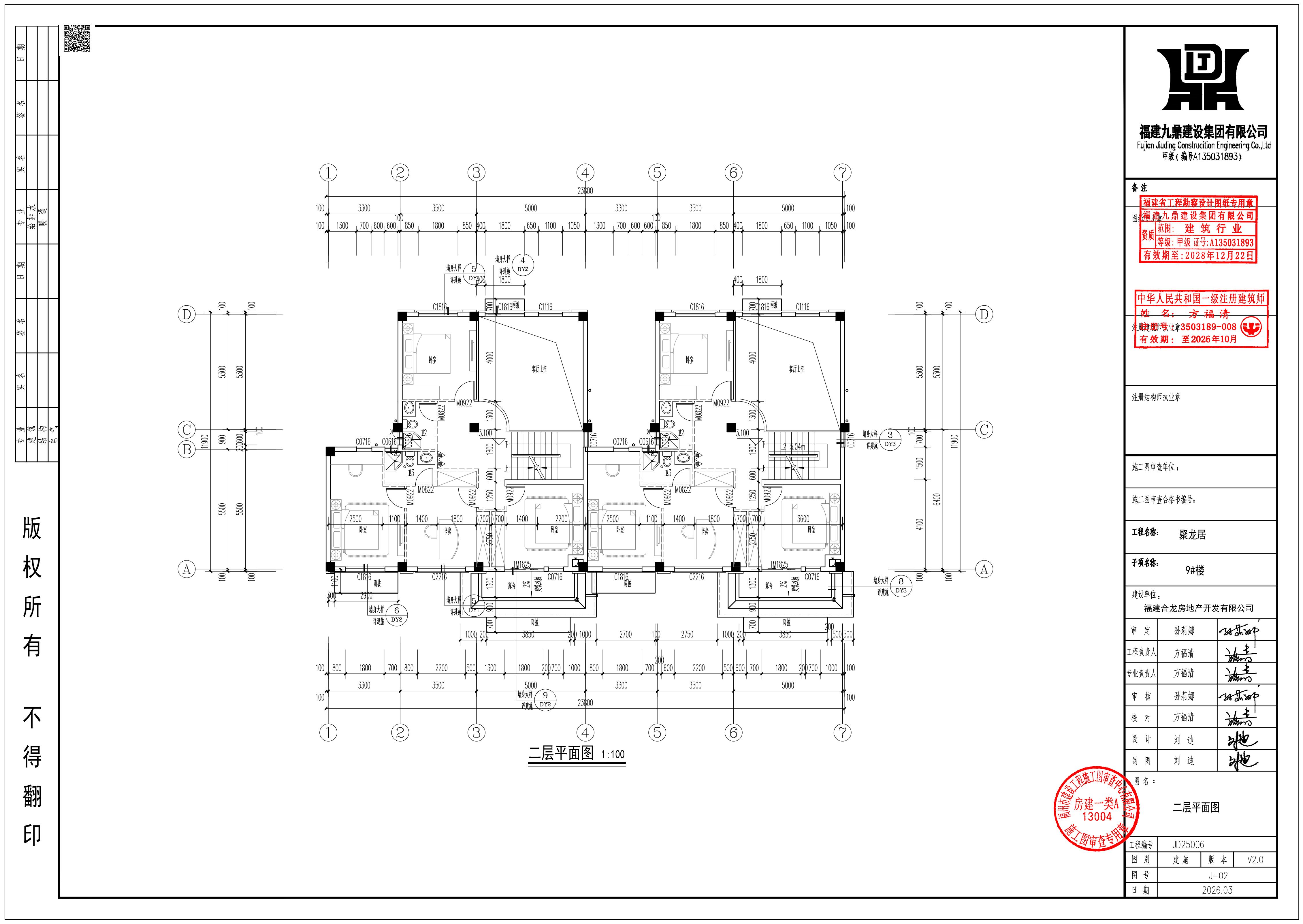
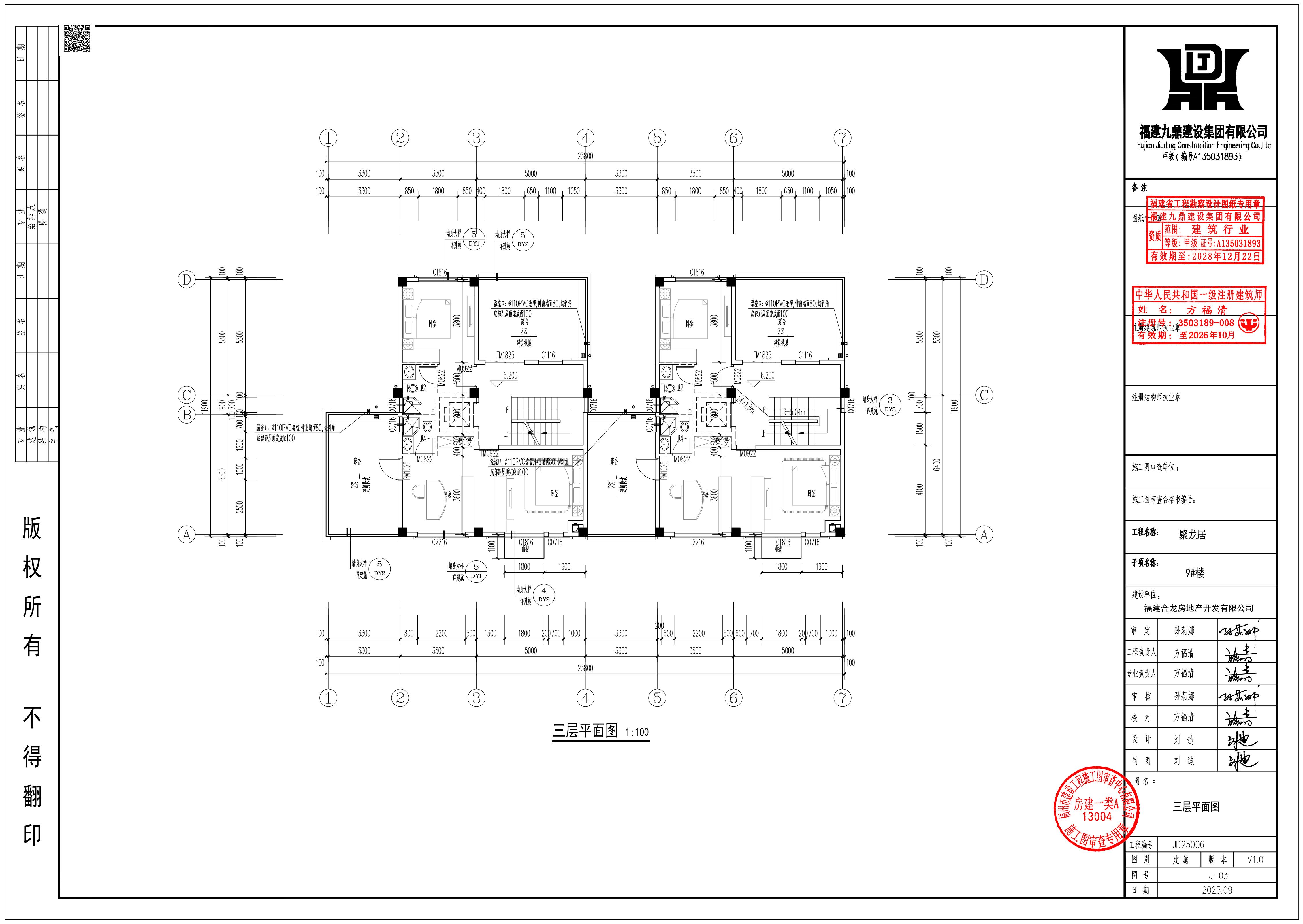
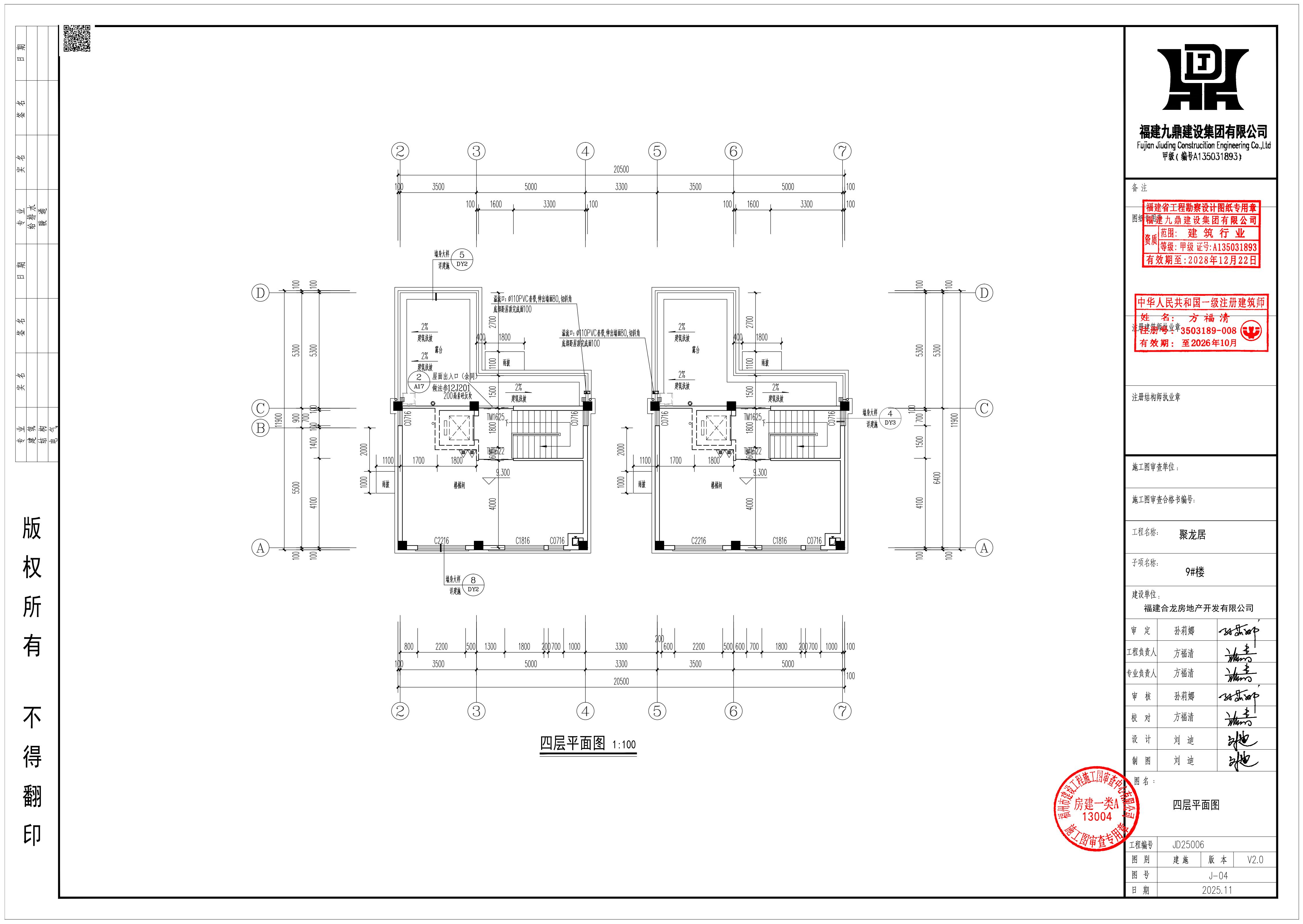
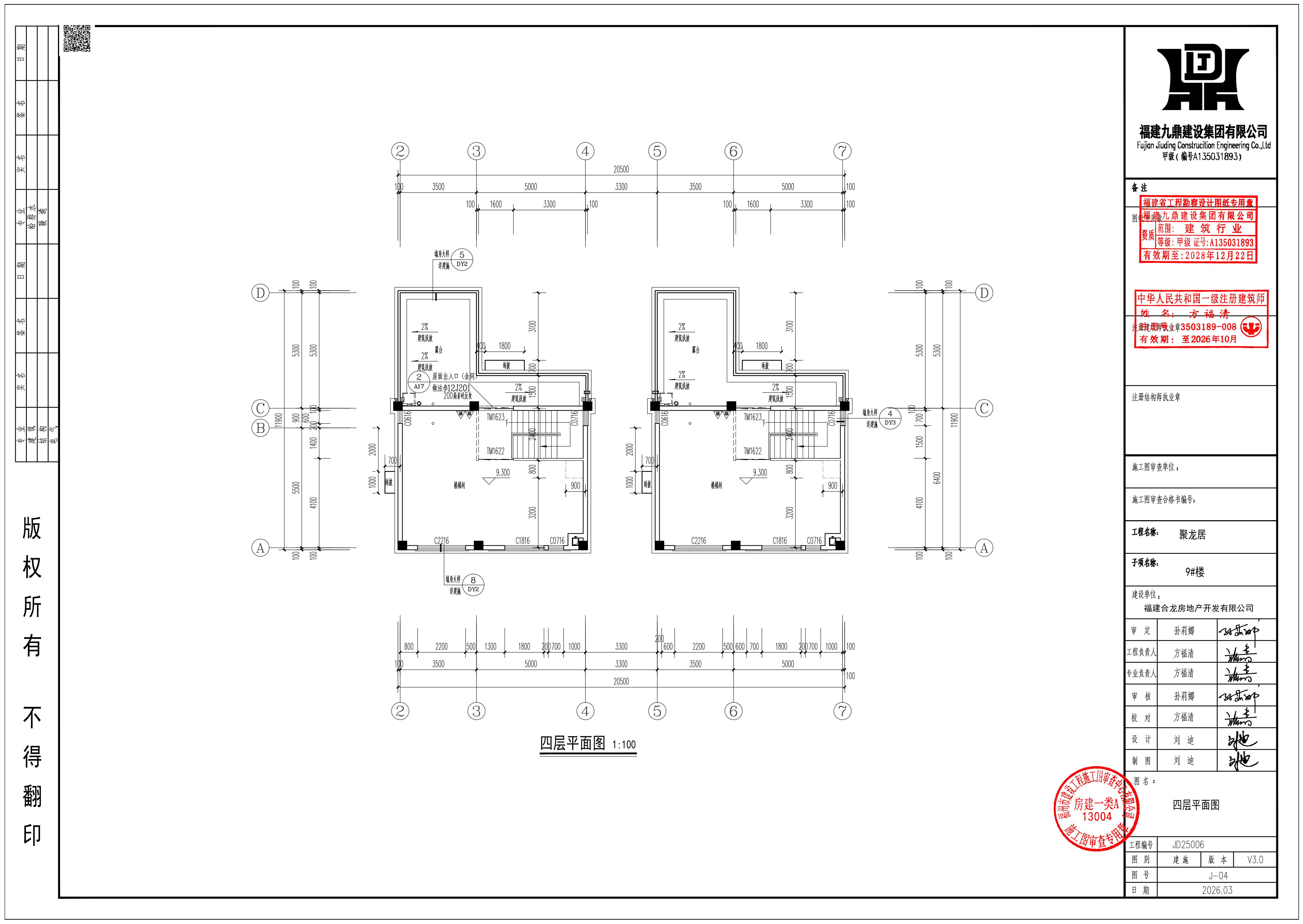
9#楼一至四层平面图(调整前后)
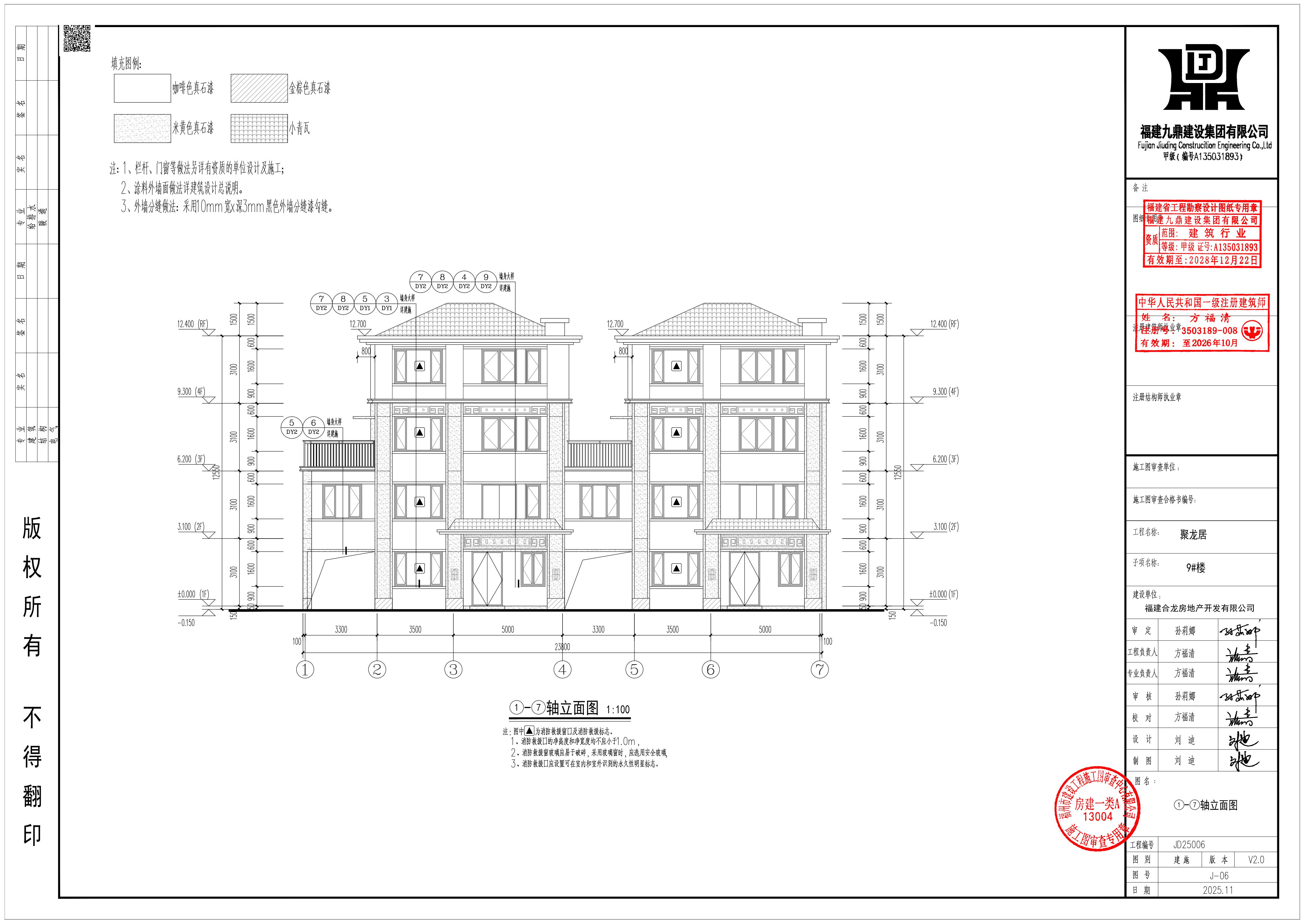
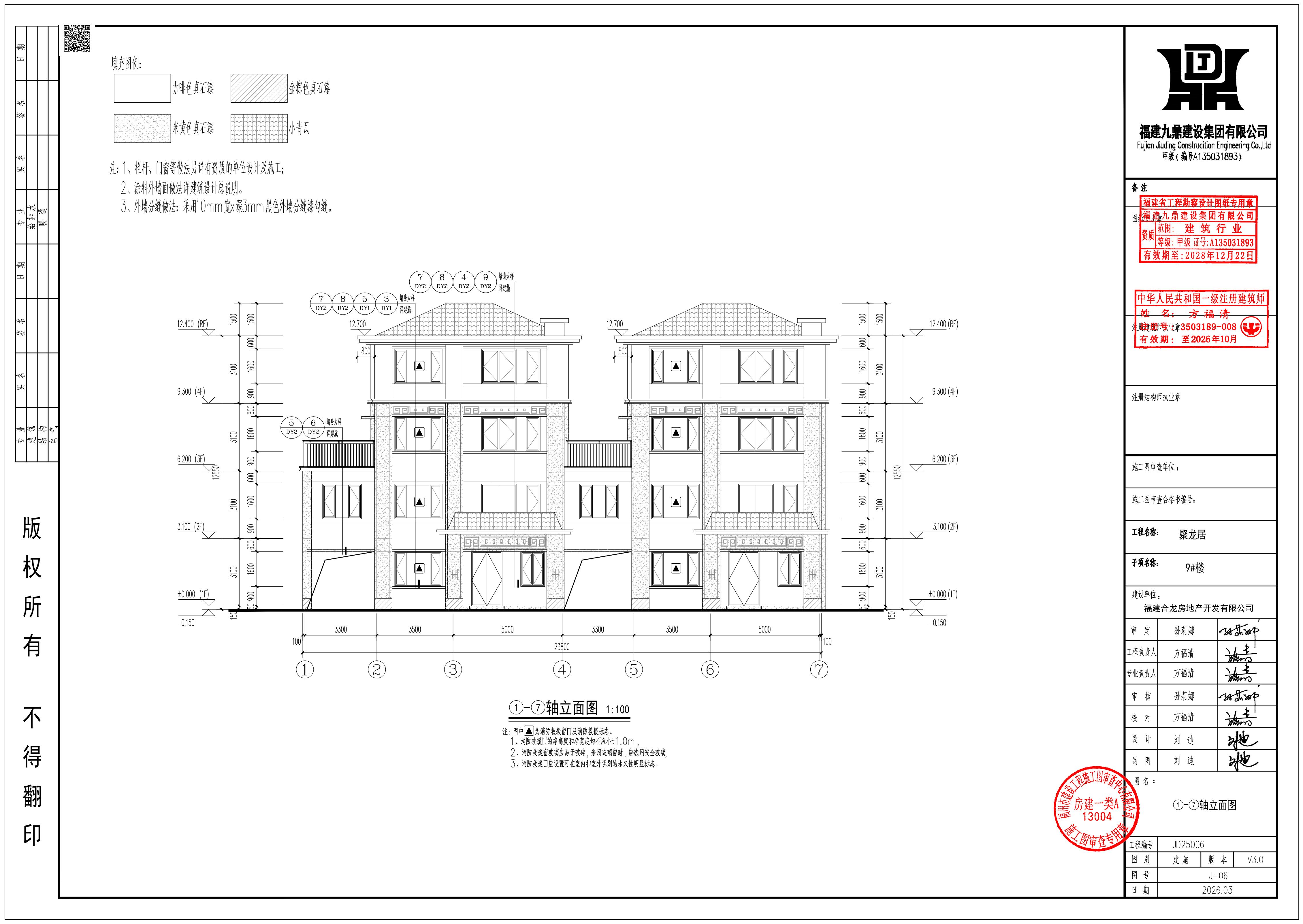
9#楼立面图(调整前后)
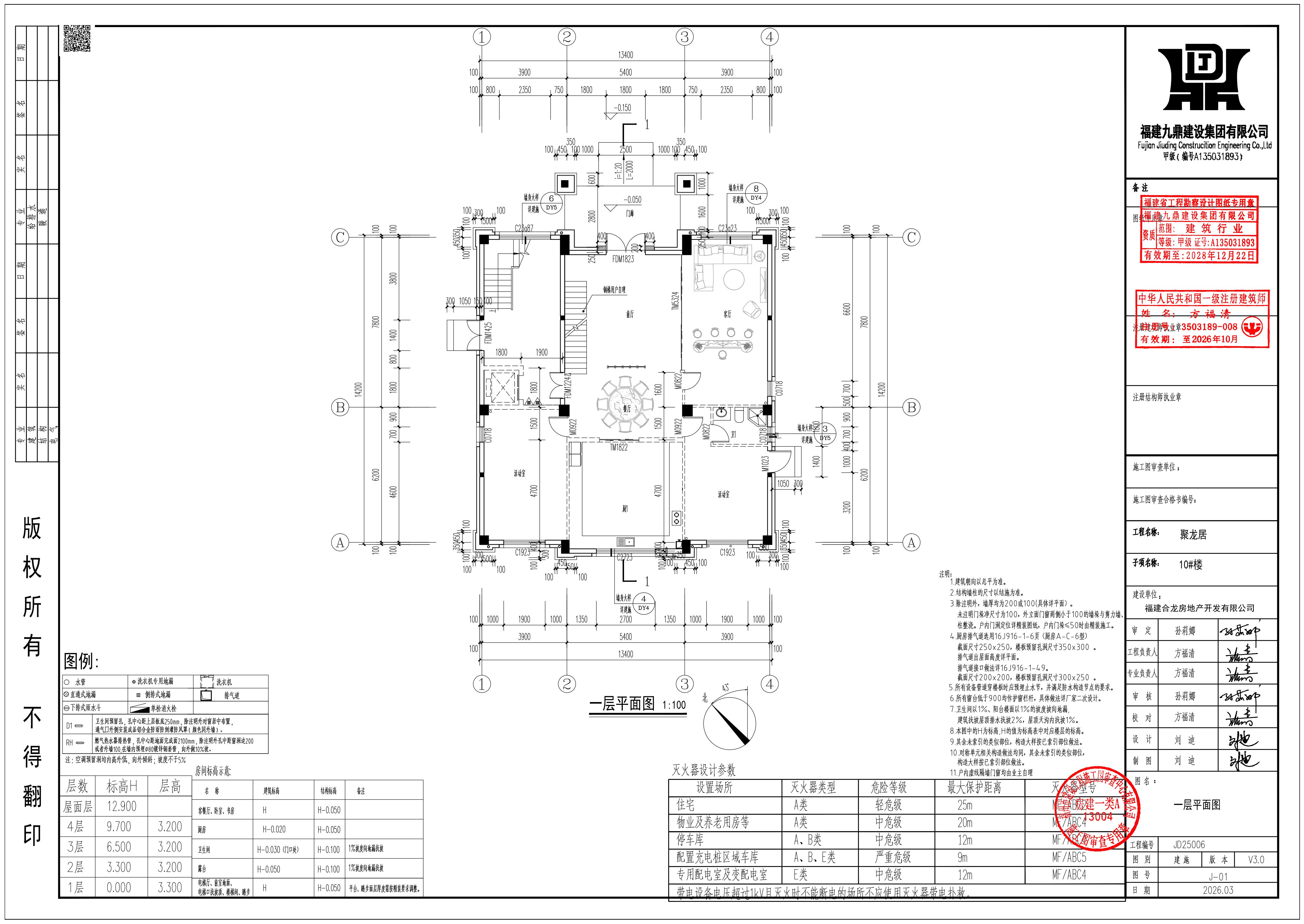
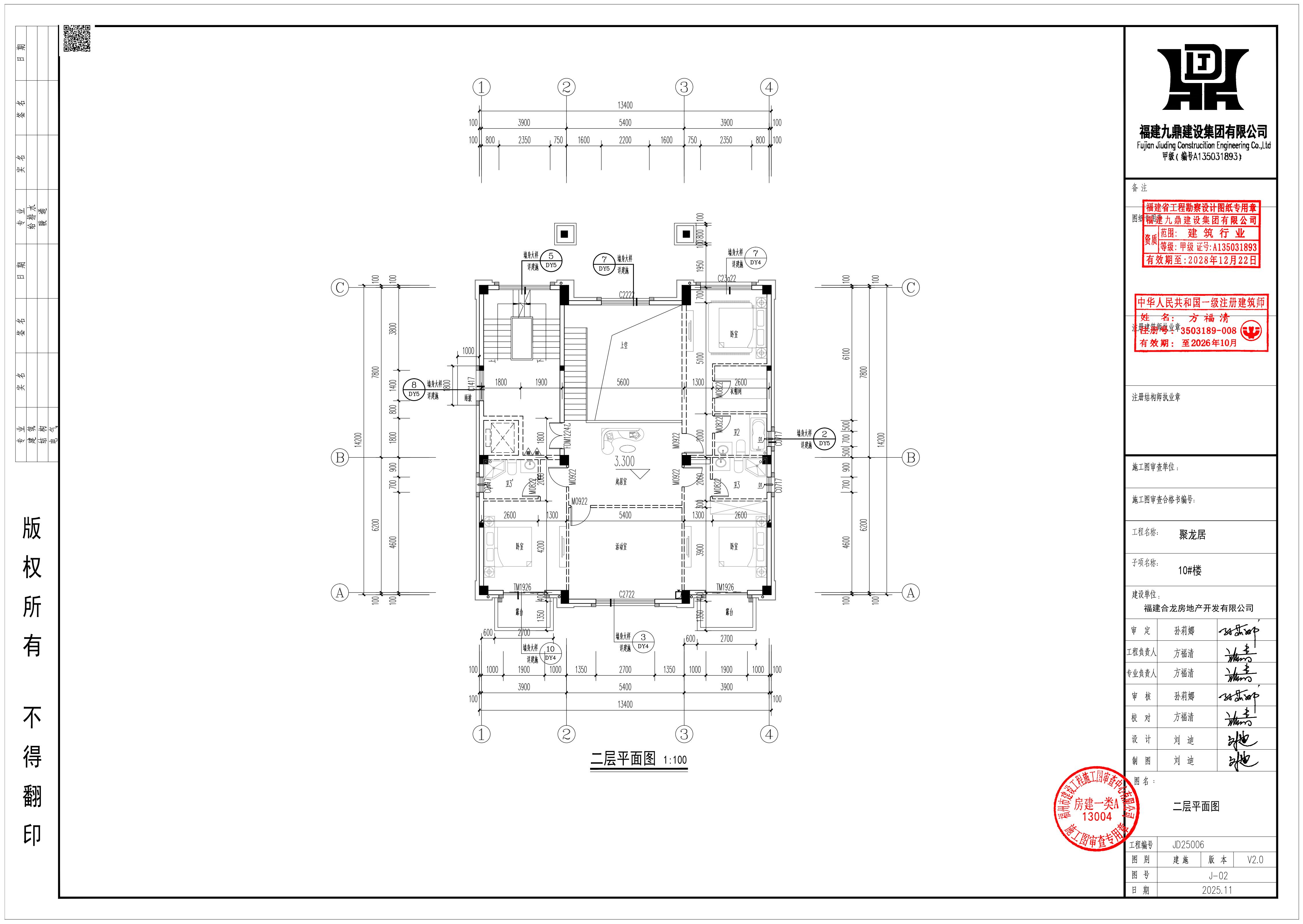
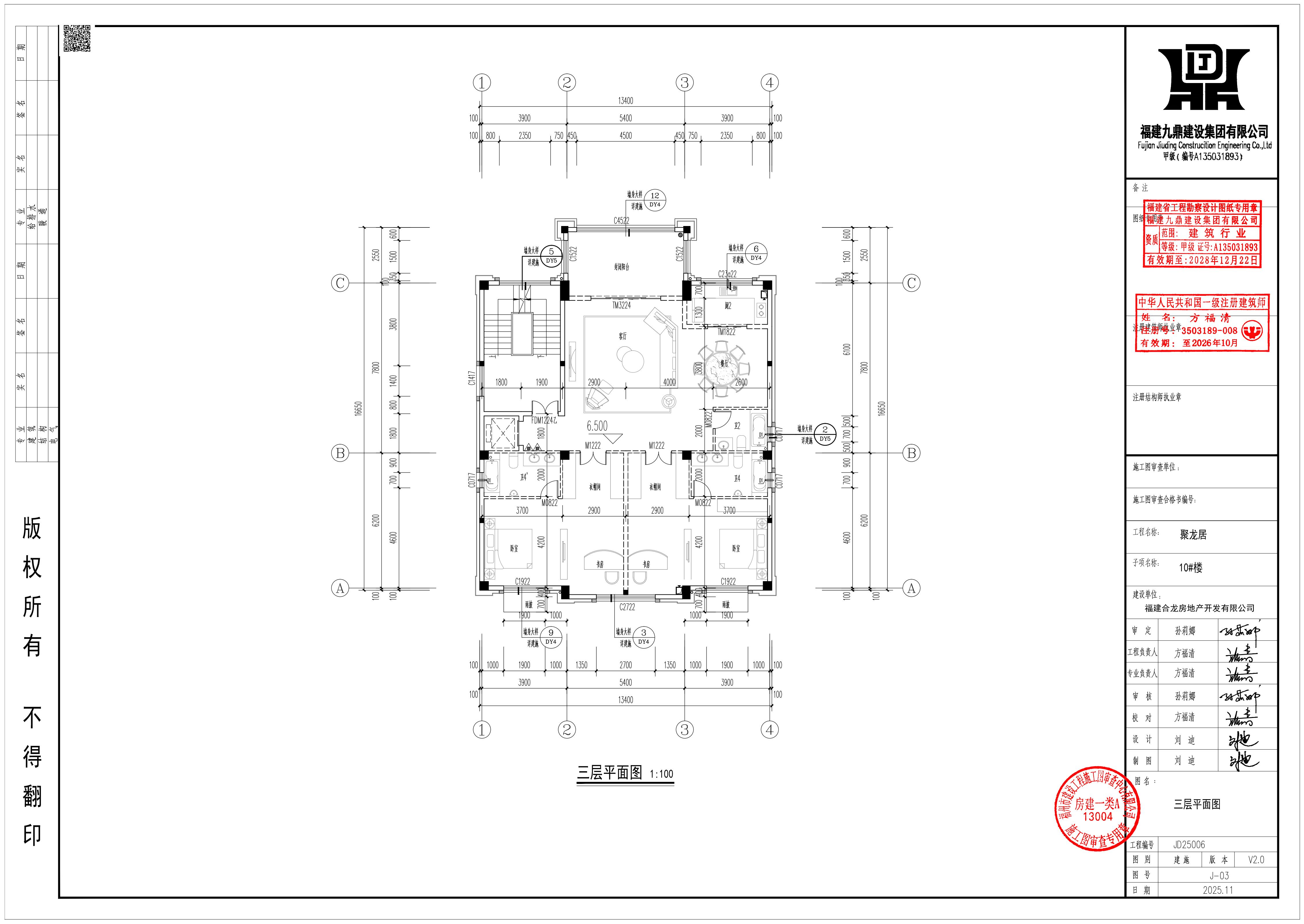
10#楼一至四层平面图(调整前后)
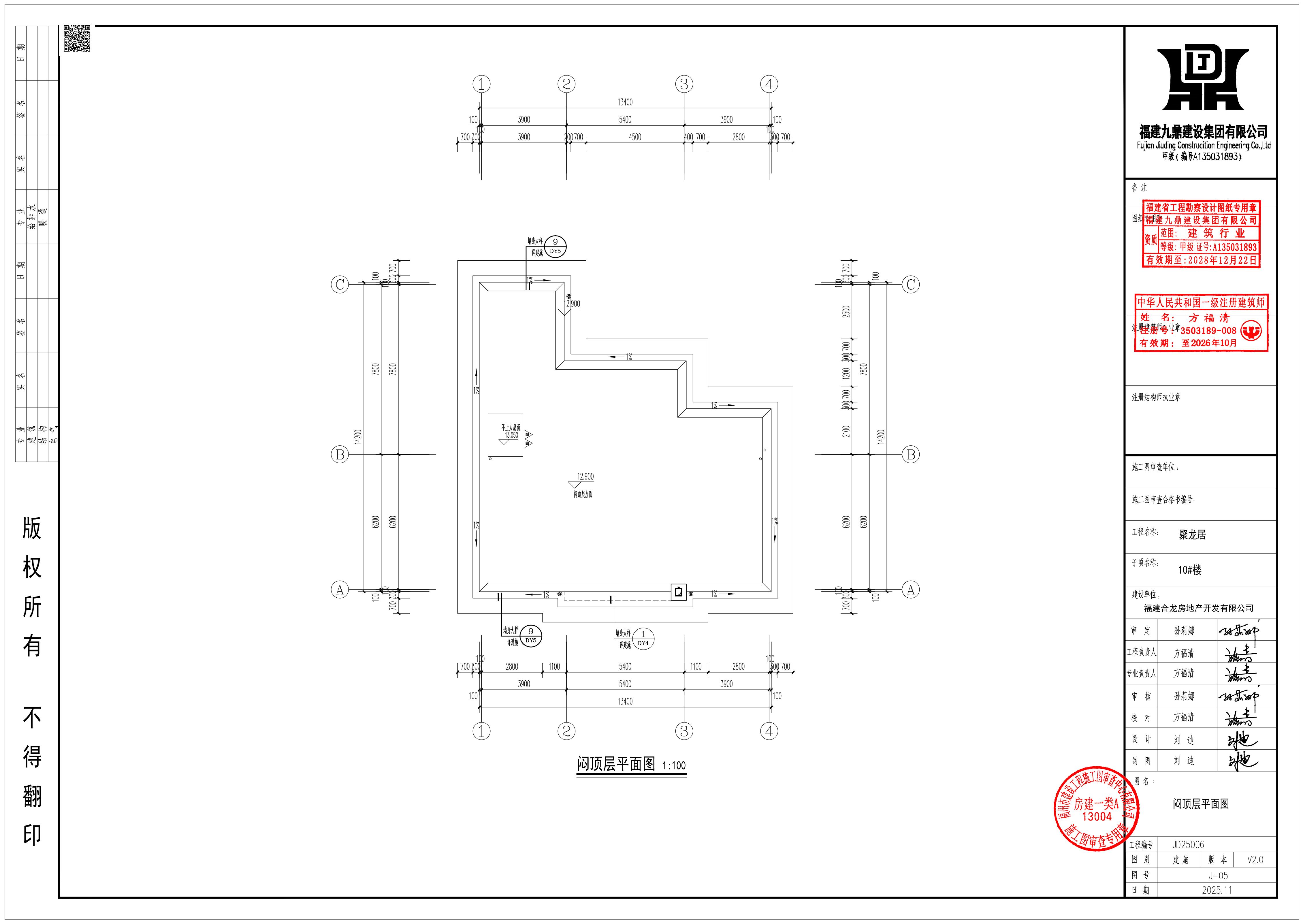
10#楼闷顶层平面图(调整前后)
10#楼屋面图平面图(调整前后)
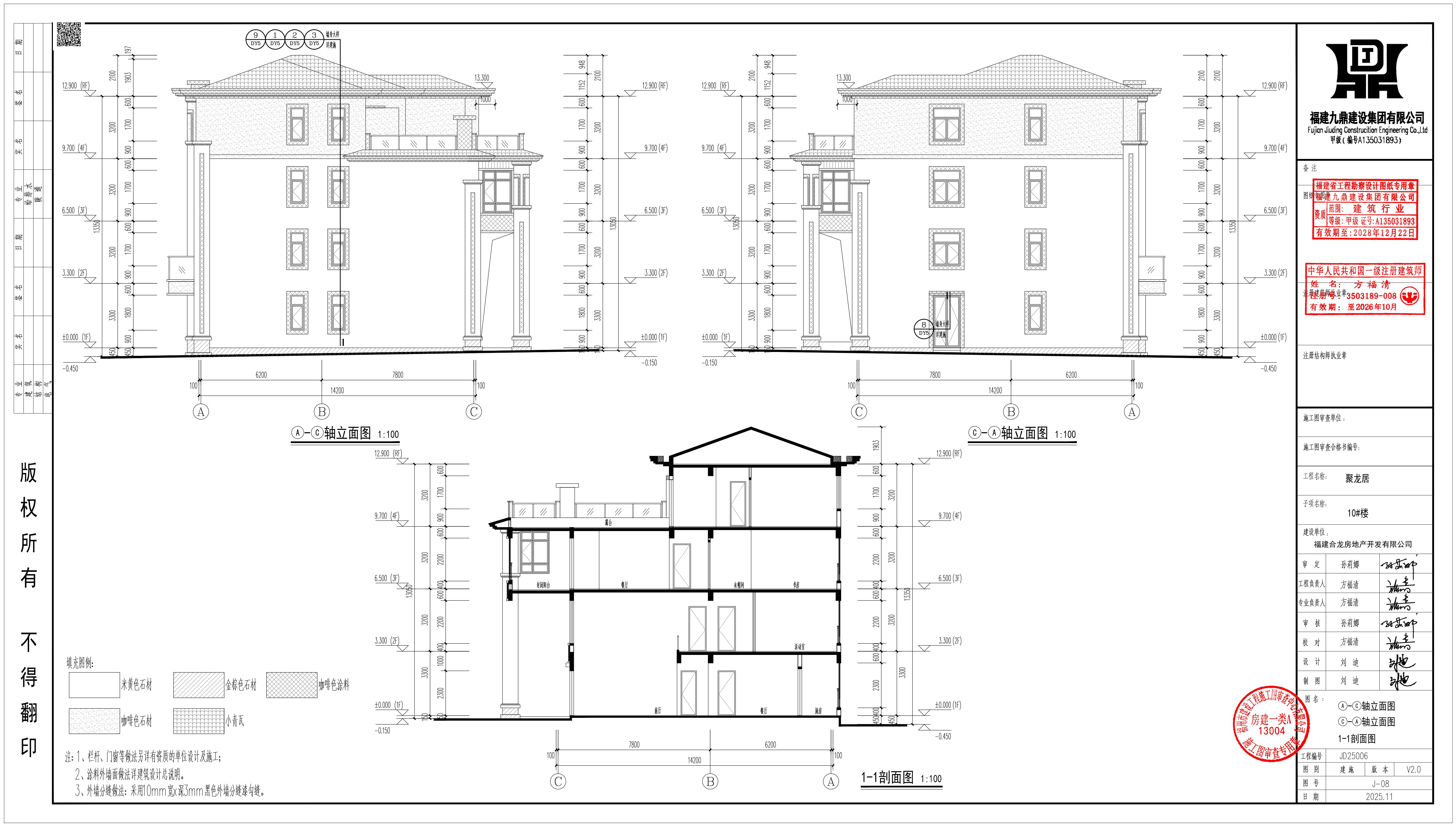
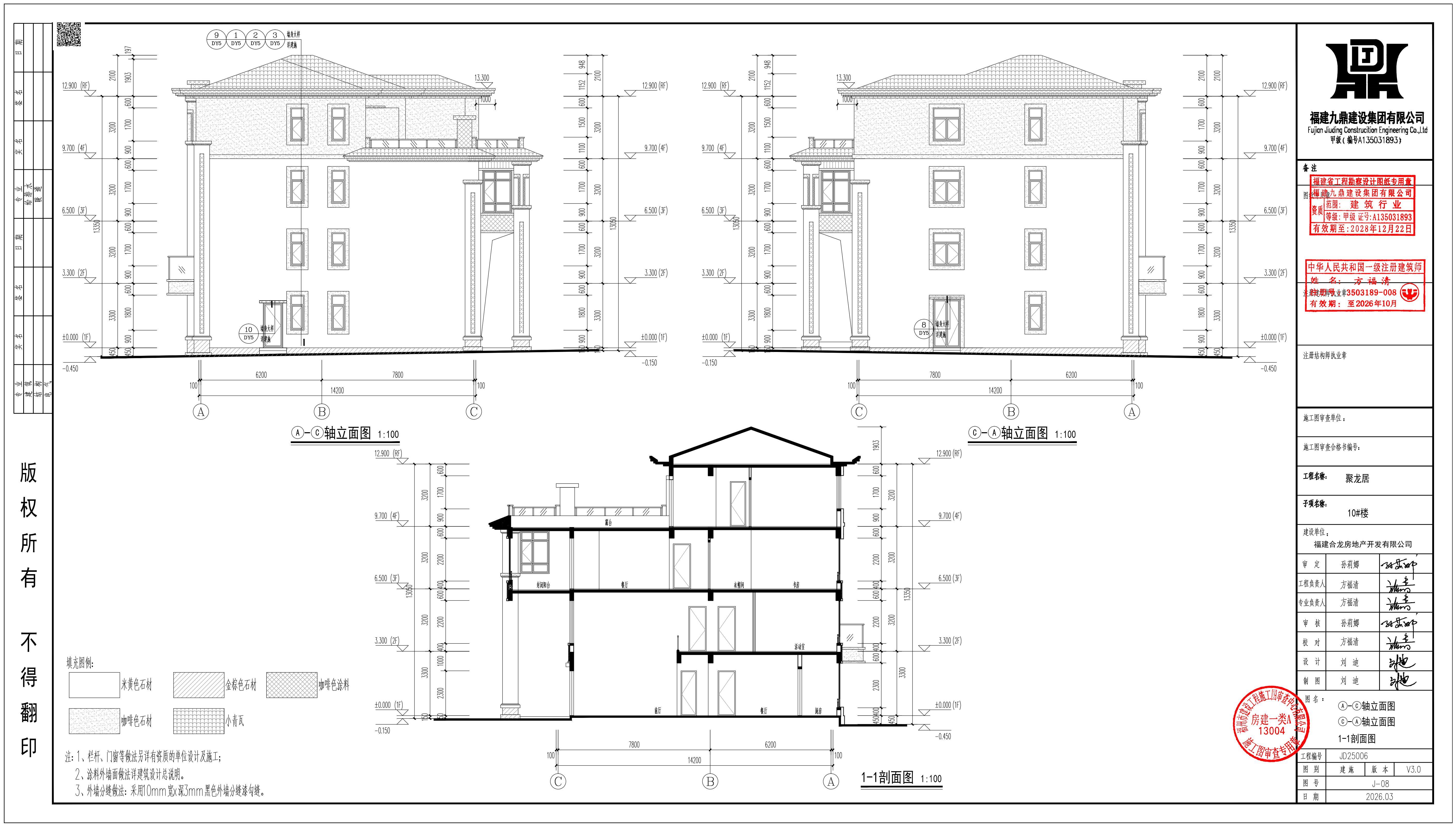
10#楼立面图(调整前后)
附注:
1、若对本公示内容不明确的,可向我局查阅。
2、书面反馈(申请)意见发表时间或邮戳日不应超过公示期的最后一天24:00,逾期视为无效意见。
3、书面意见应注明真实联系人姓名、联系电话、联系地址。
闽清县自然资源和规划局
2026年4月13日

总平面图(变更前)

总平面图(变更后)

1#楼一层平面图(变更前)_01

1#楼一层平面图(变更后)_01

1#楼1~17轴立面图(变更前)_01

1#楼1~17轴立面图(变更后)_01

1#楼17~1轴立面图(变更前)_01

1#楼17~1轴立面图(变更后)_01

1#楼A~轴QD(变更前)_01

1#楼A~QD轴(变更后)_01

1#楼QD~A轴(变更前)_01

1#楼QD~A轴(变更后)_01

1#楼1-1剖(变更前)_01

1#楼1-1剖(变更后)_01

2#楼一层平面图(变更前)_01

2#楼一层平面图(变更后)_01

2#楼17~1轴立面图(变更前)_01

2#楼17~1轴立面图(变更后)_01

3#楼一层平图(变更前)_01

3#楼一层平图(变更后)_01

3#楼1~15轴立面图(变更前)_01

3#楼1~15轴立面图(变更后)_01

3#楼15~1轴立面图(变更前)_01

3#楼15~1轴立面图(变更后)_01

3#楼A~L轴立面图(变更前)_01

3#楼A~L轴立面图(变更后)_01

3#楼L~A轴立面图(变更前)_01

3#楼L~A轴立面图(变更后)_01

5#楼一层平面图(变更前)_01

5#楼一层平面图(变更后)_01

5#楼二层平面图(变更前)_01

5#楼二层平面图(变更后)_01

5#楼三层平面图(变更前)_01

5#楼三层平面图(变更后)_01

5#楼四层平面图(变更前)_01

5#楼四层平面图(变更后)_01

5#楼1~17轴立面图(变更前)_01

5#楼1~17轴立面图(变更后)_01

5#楼17~1轴立面图(变更前)_01

5#楼17~1轴立面图(变更后)_01

6#楼一层平面图(变更前)_01

6#楼一层平面图(变更后)_01

6#楼二层平面图(变更前)_01

6#楼二层平面图(变更后)_01

6#楼三层平面图(变更前)_01

6#楼三层平面图(变更后)_01

6#楼四层平面图(变更前)_01

6#楼四层平面图(变更后)_01

6#楼1~12轴立面图(变更前)_01

6#楼1~12轴立面图(变更后)_01

6#楼12~1轴立面图(变更前)_01

6#楼12~1轴立面图(变更后)_01

6#楼C~A轴立面图(变更前)_01

6#楼C~A轴立面图(变更后)_01

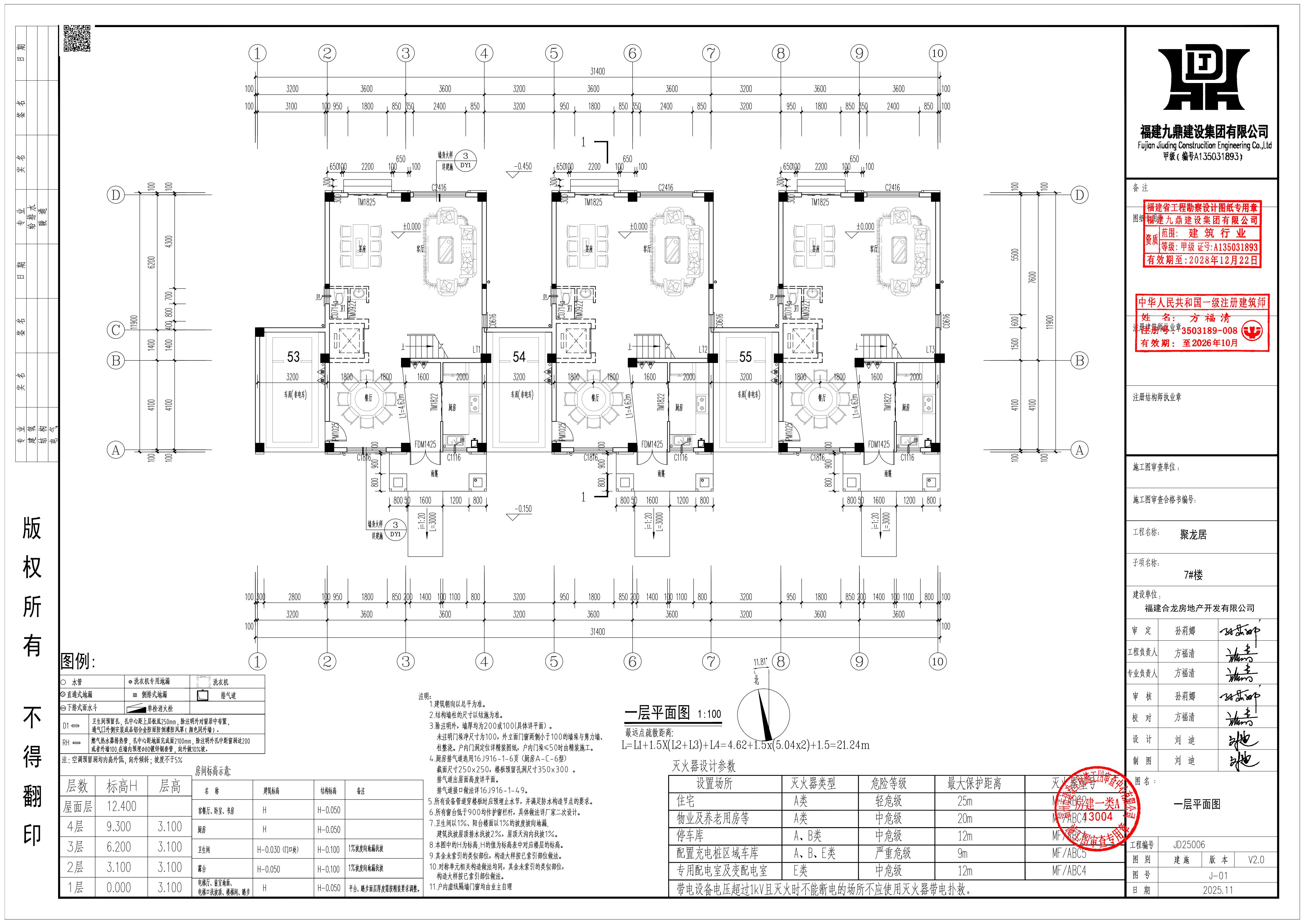
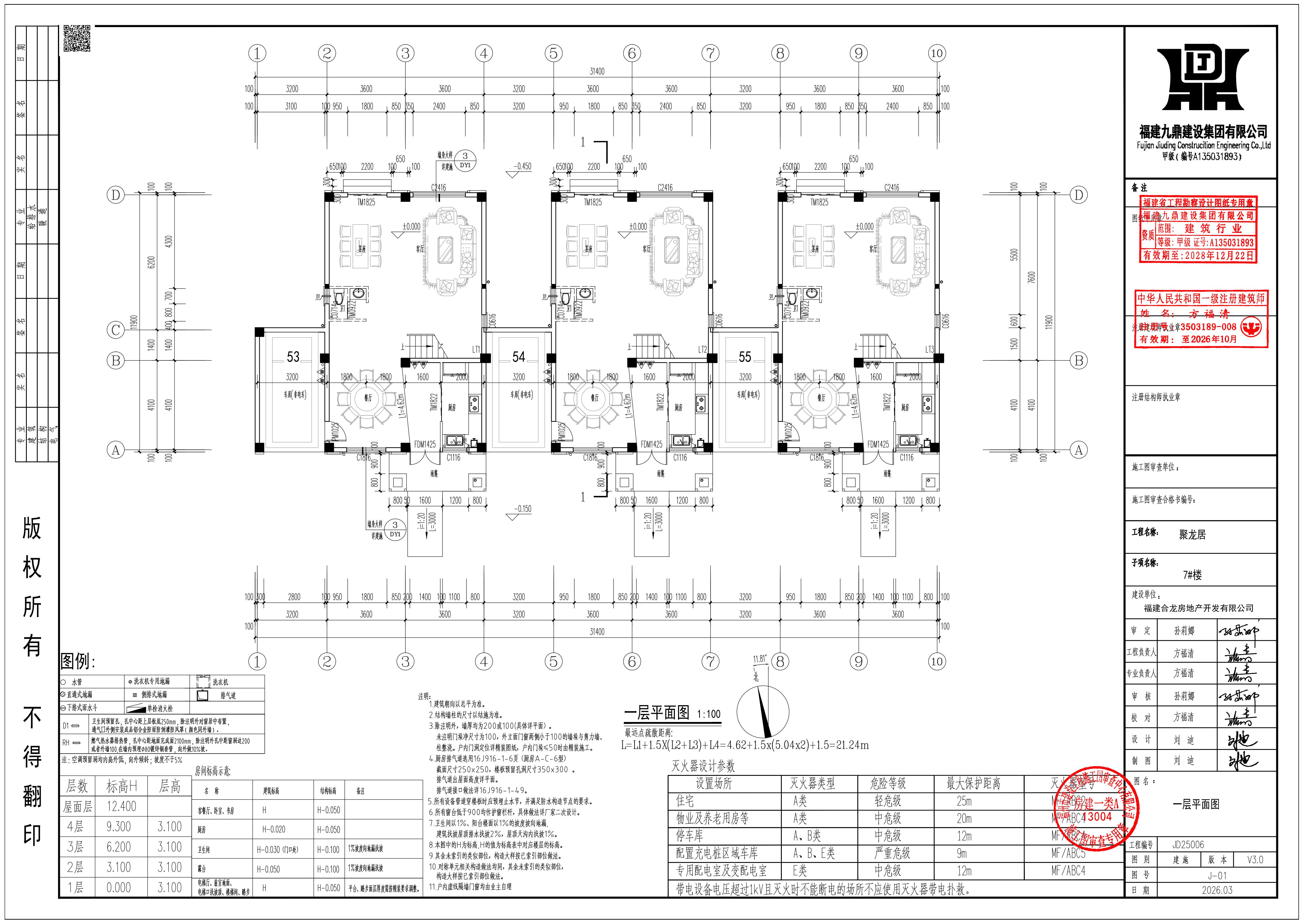
7#楼一层平面图(变更前)_01

7#楼一层平面图(变更后)_01

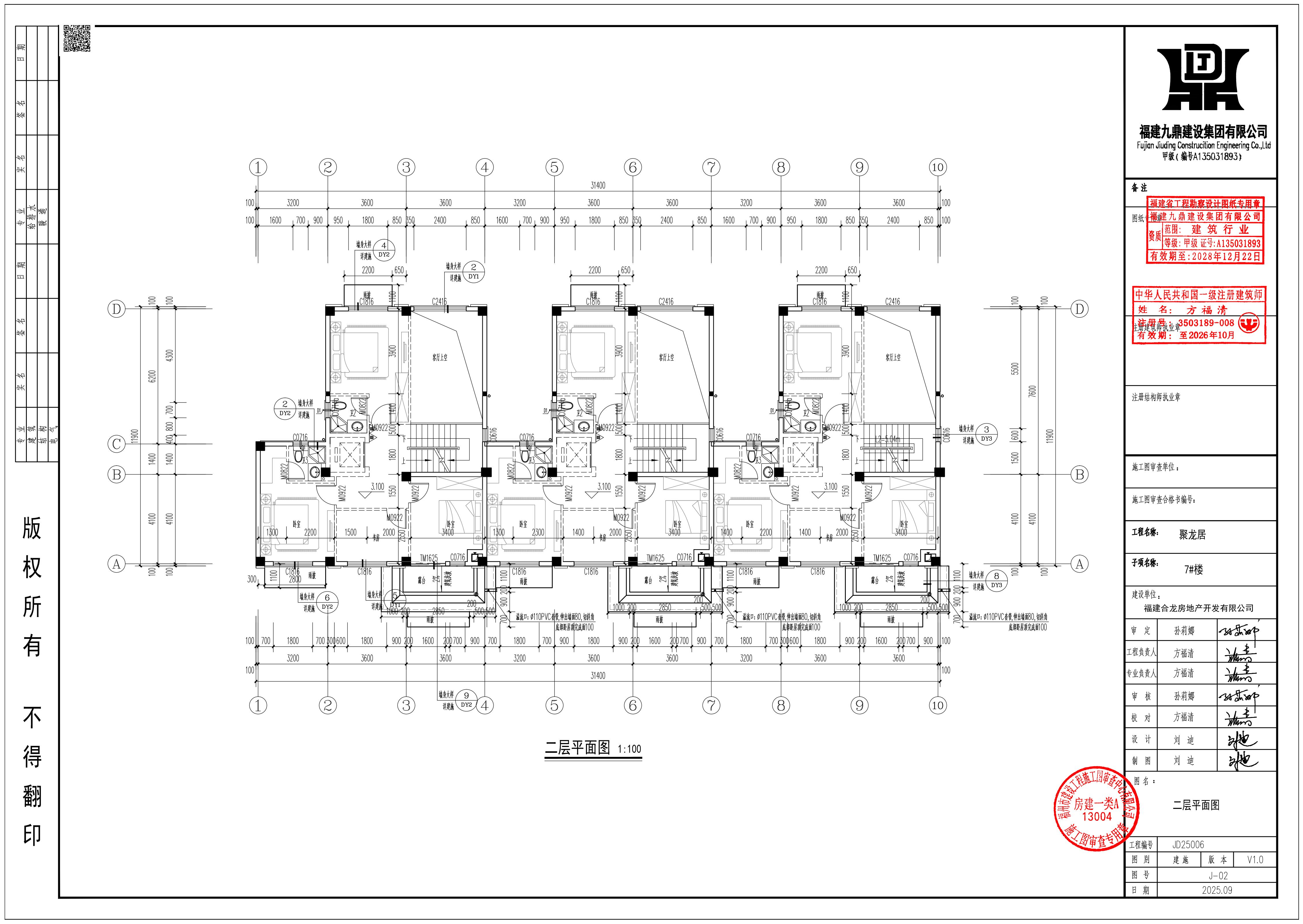
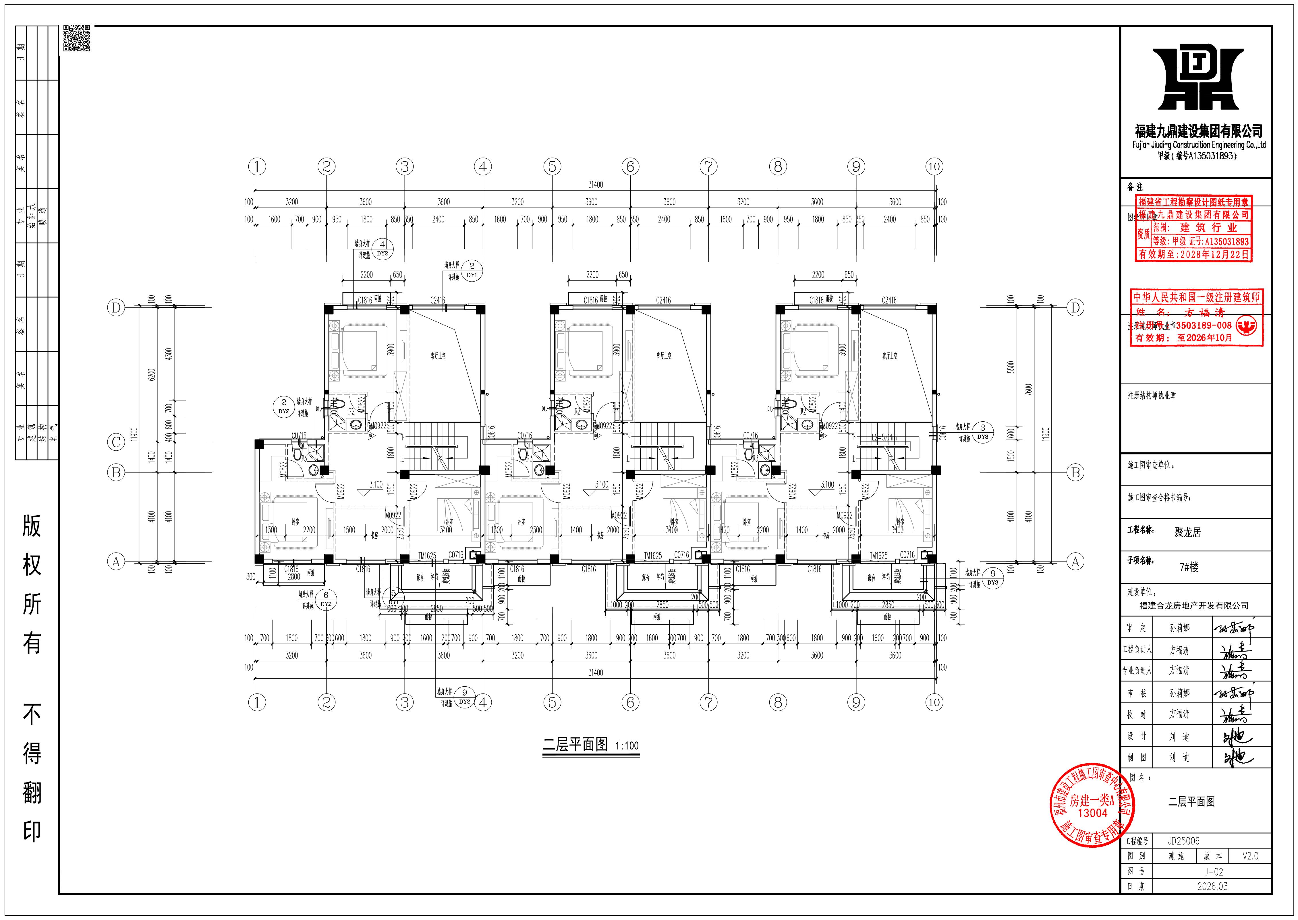
7#楼二层平面图(变更前)_01

7#楼二层平面图(变更后)_01

7#楼三层平面图(变更前)_01

7#楼三层平面图(变更后)_01

7#楼四层平面图(变更前)_01

7#楼四层平面图(变更后)_01

7#楼1~10轴立面图(变更前)_01

7#楼1~10轴立面图(变更后)_01

7#楼10~1轴立面图(变更前)_01

7#楼10~1轴立面图(变更后)_01

8#楼一层平面图(变更前)_01

8#楼一层平面图(变更后)_01

8#楼二层平面图(变更前)_01

8#楼二层平面图(变更后)_01

8#楼三层平面图(变更前)_01

8#楼三层平面图(变更后)_01

8#楼四层平面图(变更前)_01

8#楼四层平面图(变更后)_01

8#楼1~10轴立面图(变更前)_01

8#楼1~10轴立面图(变更后)_01

8#楼10~1轴立面图(变更前)_01

8#楼10~1轴立面图(变更后)_01

9#楼一层面图(变更前)_01

9#楼一层面图(变更后)_01

9#楼二层面图(变更前)_01

9#楼二层面图(变更后)_01

9#楼三层面图(变更前)_01

9#楼三层面图(变更后)_01

9#楼四层面图(变更前)_01

9#楼四层面图(变更后)_01

9#楼1~7轴立面图(变更前)_01

9#楼1~7轴立面图(变更后)_01

9#楼7~1轴面图(变更前)_01

9#楼7~1轴立面图(变更后)_01

10#楼一层平面图(变更前)_01

10#楼一层平面图(变更后)_01

10#楼二层平面图(变更前)_01

10#楼二层平面图(变更后)_01

10#楼三层平面图(变更前)_01

10#楼三层平面图(变更后)_01

10#楼四层平面图(变更前)_01

10#楼四层平面图(变更后)_01

10#楼闷顶层平面图(变更前)_01

10#楼闷顶层平面图(变更后)_01

10#楼屋面图平面图(变更前)_01

10#楼屋面图平面图(变更后)_01

10#楼1~4轴、4~1轴立面图(变更前)_01

10#楼1~4轴、4~1轴立面图(变更后)_01

10#楼A~C轴、C~A轴立面图(变更前)_01

10#楼A~C轴、C~A轴立面图(变更后)_01